Transport en commun PORTE MAILLOT- ARGENTINE

Des bureaux à vendre à PARIS 16 (75016), entre l'Arc de Triumph et la porte Maillot, 1 242 m² de bureaux dans un immeuble ancien de standing

PORTE MAILLOT- ARGENTINE

1242 m² non-divisibles

14 500 000 €
11 675 €/m²


Immeuble, prestations et services

Espaces ouverts Chauffage collectif Cuisine Espace extérieur ERP/PMR Gardien Standing

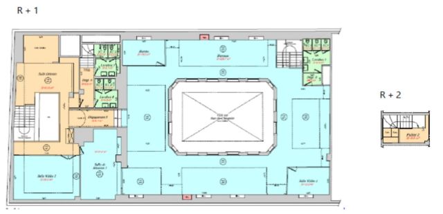
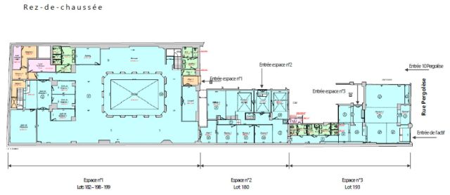
Sur 3 niveaux, 1.242 m² de bureaux répartis en espaces ouverts et cloisonnés.

Plusieurs accès dont un accès indépendant depuis la rue avec un linéaire de façade d'environ 12 m.

Hauteur sous verrière de plus de 7 m. Hauteur sous faux plafond de 5,65 m.

Climatisation réversible et système de renouvellement d’air

Création d'une terrasse sur la partie arrière du lot d’une surface de 100 m²

Reprise des sols et ponçage du parquet, reprise complète des peintures, changement des luminaires, installation d’une cuisine équipée, aménagement complet des locaux côté rue anciennement à usage de studio.

2 escaliers intéreurs.

Les biens s'inscrivent dans un immeuble ancien de très bon standing, principalement constitué d'un bâtiment sur rue, sur la parcelle EZ 0006 d'une capacité de 1 387 m².

A destination mixte, bureaux et résidentiel, l'immeuble est détenu en copropriété.

Ses façades pierres de taille sont en bon état de ravalement, ses parties communes de bon standing.

Les prestations de chauffage sont produites par l'immeuble.

Ses prestations générales regroupent ascenseurs, interphone, digicode, gardien et accès sécurisés.

Les informations sur les risques auxquels ce bien est exposé sont disponibles sur le site Géorisques : www.georisques.gouv.fr.

Tableau de surfaces

Niveau Type Surface Prix* Charges**
Rez de chaussée BUREAUX 832 m² NC NC
Entresol BUREAUX 406 m² NC NC
Etage BUREAUX 4 m² NC NC

*Prix exprimé en €/m²
**Charges exprimées en € HT/m²/an

Conditions financières et juridiques

11 675 € / m²

Plus faible valeur du marché

8 000 € / m²

Plus forte valeur du marché

32 521 € / m²
  • Prix net vendeur

    14 500 000 €

  • Charges annuelles

    34 776 €

  • Impôt foncier

    20 €

  • Taxe sur les bureaux

    24,69 €

  • Consommation énergétique

    En cours

  • Gaz à effet de serre

    En cours

  • Surfaces et affectations en cours de validation
  • Cession de l'actif libre de location ou d'occupation.
  • Vente de gré à gré.
  • Cession soumise aux droits d'enregistrement.
  • Le prix de vente s'exprime NET VENDEUR. L'assiette utilisée pour le calcul les droits de mutation n'inclut pas les honoraires hors TVA à la charge de l'acquéreur.

PARTAGER

Valérie AKNIN

Valérie AKNIN

Nous appeler
Selectionner cette offre Imprimer cette offre Partager cette offre par email
Réf. 6058

Les offres similaires