Transport en commun MIRABEAU

Un immeuble indépendant de bureaux à vendre à PARIS 16 (75016), métro MIRABEAU, 770 m² de bureaux dans un immeuble restructuré.

MIRABEAU

770 m² non-divisibles

13 090 000 €
17 000 €/m²


Immeuble, prestations et services

Climatisation Immeuble indépendant Espace extérieur ERP/PMR Gardien Standing

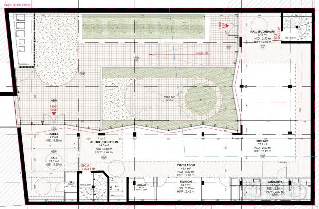
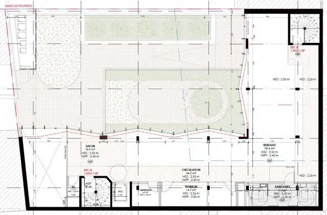
3 plateaux lumineux et ouverts, bénéficiant d’une grande flexibilité d’aménagement, pouvant correspondre à de nombreux usages : bureaux cloisonnés, open space, écoles, centre médical…

Remise à neuf de toutes les installations techniques.

Installation d’une climatisation.

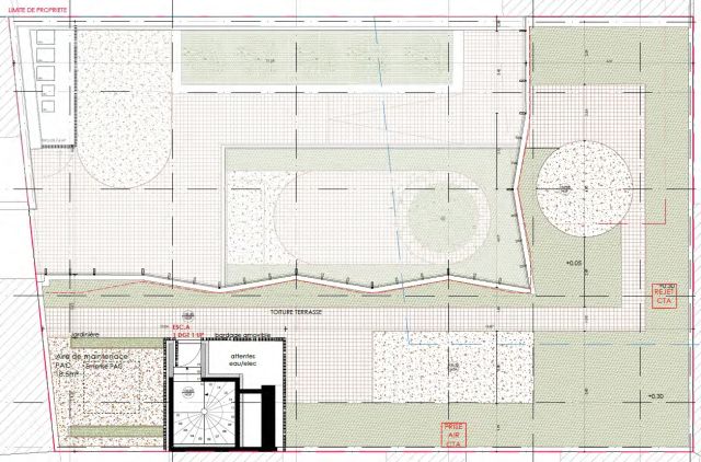
Réaménagement des espaces paysagers sur l’ensemble des terrasses et niveaux.

Toiture-terrasse non PMR.

Espaces paysagers accessibles.

Le projet vise une classification ERP de type W de 5e catégorie.

Etat des biens : restructurés.

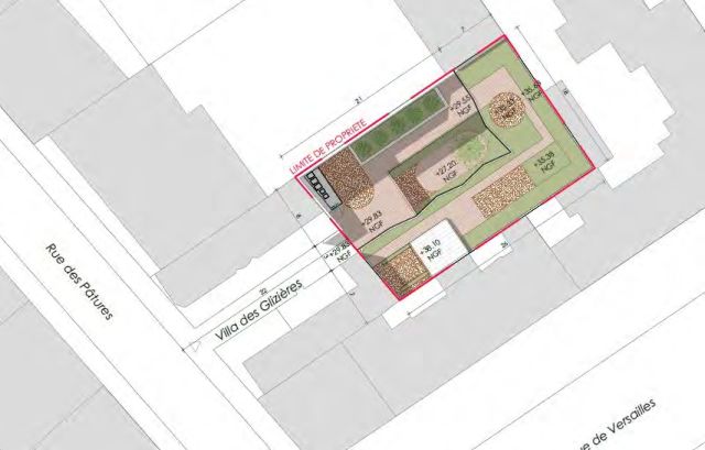
Surface extérieure de 458 m².

Les biens s'inscrivent dans un immeuble restructuré, principalement constitué d'un bâtiment sur rue et cour, sur la parcelle cadastrale 000 CA 14 d’une contenance de 510 m².

A destination exclusive de bureaux, l'immeuble est détenu en copropriété.

Ses façades modernes sont en bon état de ravalement, et ses parties communes de bon standing.

Ses prestations générales regroupent façades entièrement vitrée, création d’un hall double hauteur, ascenseurs, interphone, digicode, gardien et accès sécurisés.

Tableau de surfaces

Niveau Type Surface Prix* Charges**
Rez de chaussée BUREAUX 337 m² NC NC
Rez de jardin BUREAUX 227 m² NC NC
Etage BUREAUX 203 m² NC NC
Toit-terrasse TERRASSES 3 m² NC NC
Toit-terrasse TERRASSES 234 m² NC NC
Rez de jardin JARDIN PRIV. 147 m² NC NC
Rez de chaussée COUR PRIV. 32 m² NC NC

*Prix exprimé en €/m²
**Charges exprimées en € HT/m²/an

Conditions financières et juridiques

17 000 € / m²

Plus faible valeur du marché

8 000 € / m²

Plus forte valeur du marché

32 521 € / m²
  • Prix net vendeur

    13 090 000 €

  • Charges annuelles

    En cours de validation

  • Impôt foncier

    En cours de validation

  • Taxe sur les bureaux

    En cours de validation

  • Consommation énergétique

    En cours

  • Gaz à effet de serre

    En cours

  • Surfaces et affectations en cours de validation
  • Cession de l'actif libre de location ou d'occupation.
  • Vente de gré à gré.
  • Cession soumise à la TVA.
  • Le prix de vente s'exprime NET VENDEUR. L'assiette utilisée pour le calcul les droits de mutation n'inclut pas les honoraires hors TVA à la charge de l'acquéreur.

PARTAGER

Valérie AKNIN

Valérie AKNIN

Nous appeler
Selectionner cette offre Imprimer cette offre Partager cette offre par email
Réf. 5932

Les offres similaires