Transport en commun Convention

Des bureaux à vendre à PARIS .. (75), métro , m² de bureaux divisibles à partir de m² dans un immeuble récent.

Convention

325 m² non-divisibles

3 700 000 €
11 385 €/m²


Immeuble, prestations et services

Climatisation Parking ERP/PMR Rénovés Gardien Standing

Au rez-de-chaussée étage, m² de bureaux répartis en

Moquette, faux-plafonds, doubles vitrages. Parquet, moulures, cheminées.

Câblage informatique et baie de brassage, faux plancher technique.

Chauffage individuel électrique gaz fuel climatisation simple flux double flux.

Etat des biens : très bon état général d'usage neufs restructurés rénovés à rénover travaux à prévoir.

Les biens s'inscrivent dans un immeuble récent, principalement constitué d'un bâtiment sur rue et cour, sur la parcelle cadastrale BH 006.

A destination mixte, de bureaux et résidentiel, l'immeuble est détenu en copropriété.

Ses façades modernes sont en bon état de ravalement, et ses parties communes de bon standing.

Ses prestations générales regroupent ascenseurs, interphone, digicode, gardien et accès sécurisés.

Les informations sur les risques auxquels ce bien est exposé sont disponibles sur le site Géorisques : www.georisques.gouv.fr.

Tableau de surfaces

Niveau Type Surface Prix* Charges**
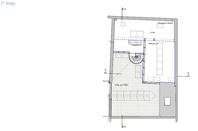
Etage BUREAUX 99 m² NC NC
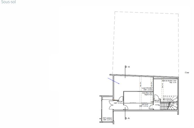
Sous-sol BUREAUX 39 m² NC NC
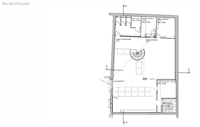
Rez de chaussée BUREAUX 187 m² NC NC

*Prix exprimé en €/m²
**Charges exprimées en € HT/m²/an

Parking Nombre Prix /unité
Intérieur 2 0 €

Conditions financières et juridiques

11 385 € / m²

Plus faible valeur du marché

4 791 € / m²

Plus forte valeur du marché

13 146 € / m²
  • Prix net vendeur

    3 700 000 €

  • Charges annuelles

    En cours de validation

  • Impôt foncier

    En cours de validation

  • Taxe sur les bureaux

    En cours de validation

  • Consommation énergétique

    En cours

  • Gaz à effet de serre

    En cours

  • Surfaces et affectations en cours de validation
  • Cession de l'actif libre de location ou d'occupation.
  • Vente de gré à gré.
  • Cession soumise aux droits d'enregistrement.
  • Le prix de vente s'exprime NET VENDEUR. L'assiette utilisée pour le calcul les droits de mutation n'inclut pas les honoraires hors TVA à la charge de l'acquéreur.

PARTAGER

Valérie AKNIN

Valérie AKNIN

Nous appeler
Selectionner cette offre Imprimer cette offre Partager cette offre par email
Réf. 6473

Les offres similaires