Transport en commun CONVENTION

Des bureaux à vendre à PARIS 15 (75015), métro Convention, 365 m² de bureaux dans un immeuble récent.

CONVENTION

365 m² non-divisibles

3 400 000 €
9 316 €/m²


Immeuble, prestations et services

ERP/PMR Gardien Standing

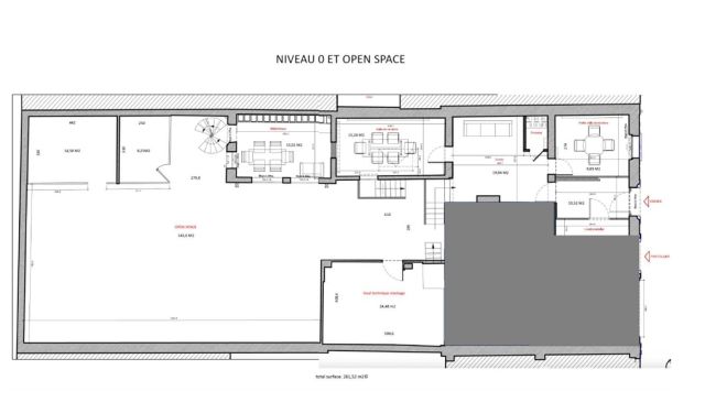
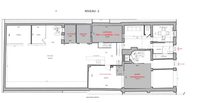
Au rez-de-chaussée et sous-sol, 365 m² de bureaux atypiques, lumineux et très calmes, répartis en espace ouvert.

Hauteur sous plafond de 5 m.

Grande verrière neuve avec stores extérieurs électriques.

Climatisation réversible, pompe à chaleur.

Câblage informatique, faux plancher technique.

Accès indépendant sur rue.

Etat des biens : excellent état.

Les biens s'inscrivent dans un immeuble principalement constitué d'un bâtiment sur rue et cour.

A destination mixte, de bureaux et résidentiel, l'immeuble est détenu en copropriété.

Ses façades modernes sont en bon état de ravalement, et ses parties communes de bon standing.

Ses prestations générales regroupent ascenseurs, interphone, digicode, gardien et accès sécurisés.

Les informations sur les risques auxquels ce bien est exposé sont disponibles sur le site Géorisques : www.georisques.gouv.fr.

Tableau de surfaces

Niveau Type Surface Prix* Charges**
Rez de chaussée BUREAUX 365 m² NC NC

*Prix exprimé en €/m²
**Charges exprimées en € HT/m²/an

Conditions financières et juridiques

9 316 € / m²

Plus faible valeur du marché

4 791 € / m²

Plus forte valeur du marché

13 146 € / m²
  • Prix net vendeur

    3 400 000 €

  • Charges annuelles

    4 493 €

  • Impôt foncier

    En cours de validation

  • Taxe sur les bureaux

    En cours de validation

  • Consommation énergétique

    En cours

  • Gaz à effet de serre

    En cours

  • Surfaces et affectations en cours de validation
  • Cession de l'actif libre de location ou d'occupation.
  • Vente de gré à gré.
  • Cession soumise aux droits d'enregistrement.
  • Le prix de vente s'exprime NET VENDEUR. L'assiette utilisée pour le calcul les droits de mutation n'inclut pas les honoraires hors TVA à la charge de l'acquéreur.

PARTAGER

Valérie AKNIN

Valérie AKNIN

Nous appeler
Selectionner cette offre Imprimer cette offre Partager cette offre par email
Réf. 6342

Les offres similaires