Transport en commun Convention

Des bureaux à vendre à PARIS 15 (75015), métro Convention, 140 m² de bureaux dans un immeuble récent.

Convention

140 m² non-divisibles

1 260 000 €
9 000 €/m²


Immeuble, prestations et services

ERP/PMR Gardien Standing

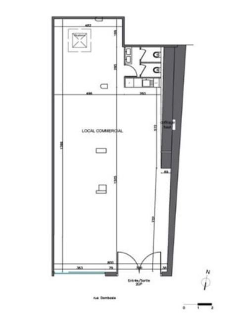
Au rez-de-chaussée, 140 m² de bureaux répartis en espace ouvert.

Peu de contraintes porteuses.

Très belle hauteur sous plafond.

Climatisable.

Linéaire de 8 m.

Puit de lumière dans le fond du local.

Parquet, faux-plafond.

Câblage informatique.

Etat des biens : très bon état.

Les biens s'inscrivent dans un immeuble récent, principalement constitué d'un bâtiment sur rue et cour

A destination mixte, de bureaux et résidentiel, l'immeuble est détenu en copropriété.

Ses façades modernes sont en bon état de ravalement, et ses parties communes de bon standing.

Ses prestations générales regroupent ascenseurs, interphone, digicode, gardien et accès sécurisés.

Les informations sur les risques auxquels ce bien est exposé sont disponibles sur le site Géorisques : www.georisques.gouv.fr.

Tableau de surfaces

Niveau Type Surface Prix* Charges**
Rez de chaussée BUREAUX 140 m² NC NC

*Prix exprimé en €/m²
**Charges exprimées en € HT/m²/an

Conditions financières et juridiques

9 000 € / m²

Plus faible valeur du marché

4 791 € / m²

Plus forte valeur du marché

13 146 € / m²
  • Prix net vendeur

    1 260 000 €

  • Charges annuelles

    4 200 €

  • Impôt foncier

    17,15 €

  • Taxe sur les bureaux

    En cours de validation

  • Consommation énergétique

    En cours

  • Gaz à effet de serre

    En cours

  • Surfaces et affectations en cours de validation
  • Cession de l'actif libre de location ou d'occupation.
  • Vente de gré à gré.
  • Cession soumise aux droits d'enregistrement.
  • Le prix de vente s'exprime NET VENDEUR. L'assiette utilisée pour le calcul les droits de mutation n'inclut pas les honoraires hors TVA à la charge de l'acquéreur.

PARTAGER

Valérie AKNIN

Valérie AKNIN

Nous appeler
Selectionner cette offre Imprimer cette offre Partager cette offre par email
Réf. 6307

Les offres similaires