Transport en commun Commerce

Des bureaux à vendre à PARIS 15 (75015), métro Commerce, 213,20 m² de bureaux dans un immeuble récent.

Commerce

213 m² non-divisibles

2 800 000 €
13 146 €/m²


Immeuble, prestations et services

Salle de réunion ERP/PMR Gardien Standing

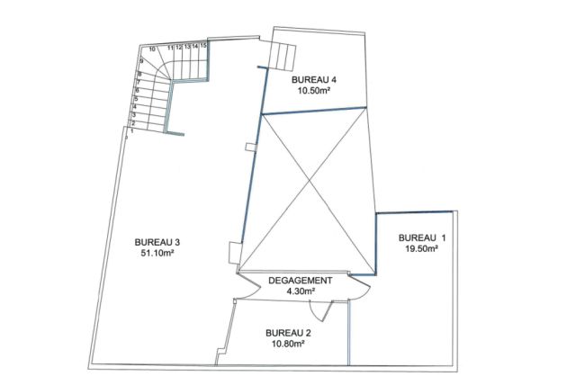
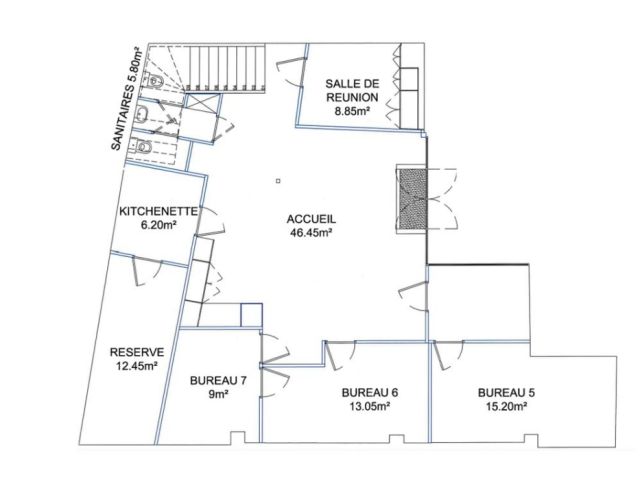
Au rez-de-chaussée et 1er étage, 213,20 m² de bureaux répartis en un grand accueil, nombreux bureaux, salle de réunion, kitchenette, 2 sanitaires.

Cloisonnement semi vitré amovible.

Détention en copropriété mais fonctionnement indépendant (entrée indépendante sur cour).

Toit verrière avec stores.

Câblage informatique.

Climatisation.

Jouissance exclusive de la petite cour entre les locaux et la loge de la gardienne.

Etat des biens : très bon état.

Les biens s'inscrivent dans un immeuble récent, édifié dans les années en R+5 sur sous-sol, principalement constitué d'un bâtiment sur rue et cour, sur la parcelle cadastrale EH53 d'une contenance de 346 m².

A destination mixte, de bureaux et résidentiel, l'immeuble est détenu en copropriété.

Ses façades modernes sont en bon état de ravalement, et ses parties communes de bon standing.

Ses prestations générales regroupent ascenseurs, interphone, digicode, gardien et accès sécurisés.

Les informations sur les risques auxquels ce bien est exposé sont disponibles sur le site Géorisques : www.georisques.gouv.fr.

Tableau de surfaces

Niveau Type Surface Prix* Charges**
Rez de chaussée BUREAUX 117 m² NC NC
Etage BUREAUX 96 m² NC NC

*Prix exprimé en €/m²
**Charges exprimées en € HT/m²/an

Conditions financières et juridiques

13 146 € / m²

Plus faible valeur du marché

4 791 € / m²

Plus forte valeur du marché

13 146 € / m²
  • Prix net vendeur

    2 800 000 €

  • Charges annuelles

    En cours de validation

  • Impôt foncier

    En cours de validation

  • Taxe sur les bureaux

    En cours de validation

  • Consommation énergétique

    En cours

  • Gaz à effet de serre

    En cours

  • Surfaces et affectations en cours de validation
  • Cession de l'actif libre de location ou d'occupation.
  • Vente de gré à gré.
  • Cession soumise aux droits d'enregistrement.
  • Le prix de vente s'exprime NET VENDEUR. L'assiette utilisée pour le calcul les droits de mutation n'inclut pas les honoraires hors TVA à la charge de l'acquéreur.

PARTAGER

Valérie AKNIN

Valérie AKNIN

Nous appeler
Selectionner cette offre Imprimer cette offre Partager cette offre par email
Réf. 6274

Les offres similaires