Transport en commun Pasteur

Des bureaux à vendre à PARIS 15 (75015), métro Pasteur, 456 m² de bureaux dans un immeuble récent.

Pasteur

456 m² non-divisibles

4 500 000 €
9 869 €/m²


Immeuble, prestations et services

Espaces ouverts ERP/PMR Gardien Standing

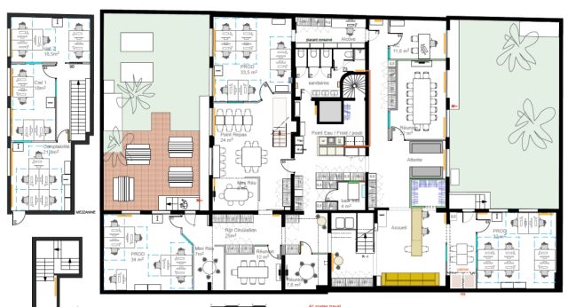
Au rez-de-chaussée et sous-sol, 456 m² de bureaux répartis en espaces ouverts et cloisonnés.

2 espaces extérieurs.

Entrée indépendante au RDC.

Ffaux-plafonds, doubles vitrages.

Câblage informatique.

Etat des biens : bon état.

Les biens s'inscrivent dans un immeuble récent, principalement constitué d'un bâtiment sur rue et cour.

A destination mixte, de bureaux et résidentiel, l'immeuble est détenu en copropriété.

Ses façades modernes sont en bon état de ravalement, et ses parties communes de bon standing.

Ses prestations générales regroupent ascenseurs, interphone, digicode, gardien et accès sécurisés.

Les informations sur les risques auxquels ce bien est exposé sont disponibles sur le site Géorisques : www.georisques.gouv.fr.

Tableau de surfaces

Niveau Type Surface Prix* Charges**
Lot BUREAUX 70 m² NC NC
Rez de chaussée BUREAUX 386 m² NC NC

*Prix exprimé en €/m²
**Charges exprimées en € HT/m²/an

Conditions financières et juridiques

9 869 € / m²

Plus faible valeur du marché

4 791 € / m²

Plus forte valeur du marché

13 146 € / m²
  • Prix net vendeur

    4 500 000 €

  • Charges annuelles

    16 416 €

  • Impôt foncier

    En cours de validation

  • Taxe sur les bureaux

    En cours de validation

  • Consommation énergétique

    En cours

  • Gaz à effet de serre

    En cours

  • Surfaces et affectations en cours de validation
  • Cession de l'actif libre de location ou d'occupation.
  • Vente de gré à gré.
  • Cession soumise aux droits d'enregistrement.
  • Le prix de vente s'exprime NET VENDEUR. L'assiette utilisée pour le calcul les droits de mutation n'inclut pas les honoraires hors TVA à la charge de l'acquéreur.

PARTAGER

Valérie AKNIN

Valérie AKNIN

Nous appeler
Selectionner cette offre Imprimer cette offre Partager cette offre par email
Réf. 6268

Les offres similaires