Transport en commun Plaisance

Des bureaux à vendre à PARIS 15 (75015), métro Plaisance, 334 m² de bureaux dans un immeuble récent.

Plaisance

334 m² non-divisibles

1 600 000 €
4 791 €/m²


Immeuble, prestations et services

Espaces ouverts Parking Espace extérieur ERP/PMR Gardien Standing

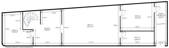
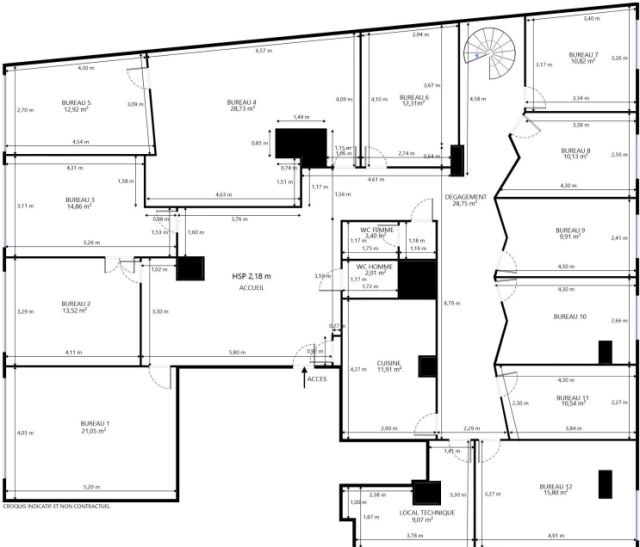
Au rez-de-chaussée et sous-sol, 334,46 m² de bureaux calme et lumineux donnant sur rue et jardin, répartis en espaces ouverts et cloisonnés.

Cloisonnement amovible.

Faux-plafonds, doubles vitrages.

Câblage informatique RJ 45.

Chauffage individuel électrique.

Accès PMR.

2 entrées indépendantes sur rue.

Le sous-sol dispose d'un éclairage zénithal et d'une issue/dégagement.

Etat des biens : bon état.

Les biens s'inscrivent dans un immeuble récent, édifié dans les années 70 en R+4 sur sous-sol, principalement constitué d'un bâtiment sur rue et cour, sur la parcelle cadastrale 000AJ01 0150 d'une contenance de 810 m².

A destination mixte, de bureaux et résidentiel, l'immeuble est détenu en copropriété.

Ses façades modernes sont en bon état de ravalement, et ses parties communes de bon standing.

Ses prestations générales regroupent ascenseurs, interphone, digicode, gardien et accès sécurisés.

Les informations sur les risques auxquels ce bien est exposé sont disponibles sur le site Géorisques : www.georisques.gouv.fr.

Tableau de surfaces

Niveau Type Surface Prix* Charges**
Rez de chaussée BUREAUX 252 m² NC NC
Sous-sol BUREAUX 82 m² NC NC

*Prix exprimé en €/m²
**Charges exprimées en € HT/m²/an

Parking Nombre Prix /unité
Intérieur 2 0 €

Conditions financières et juridiques

4 791 € / m²

Plus faible valeur du marché

4 791 € / m²

Plus forte valeur du marché

13 146 € / m²
  • Prix net vendeur

    1 600 000 €

  • Charges annuelles

    11 690 €

  • Impôt foncier

    20 €

  • Taxe sur les bureaux

    24,69 €

  • Consommation énergétique

    En cours

  • Gaz à effet de serre

    En cours

  • Surfaces et affectations en cours de validation
  • Cession de l'actif libre de location ou d'occupation.
  • Vente de gré à gré.
  • Cession soumise aux droits d'enregistrement.
  • Le prix de vente s'exprime NET VENDEUR. L'assiette utilisée pour le calcul les droits de mutation n'inclut pas les honoraires hors TVA à la charge de l'acquéreur.

PARTAGER

Valérie AKNIN

Valérie AKNIN

Nous appeler
Selectionner cette offre Imprimer cette offre Partager cette offre par email
Réf. 6245

Les offres similaires