Transport en commun Felix Faure

Des bureaux à vendre à PARIS 15 (75015), métro Felix Faure, 585 m² de bureaux dans un immeuble récent.

Felix Faure

585 m² non-divisibles

3 500 000 €
5 983 €/m²


Immeuble, prestations et services

Espaces ouverts Parking ERP/PMR Gardien Standing

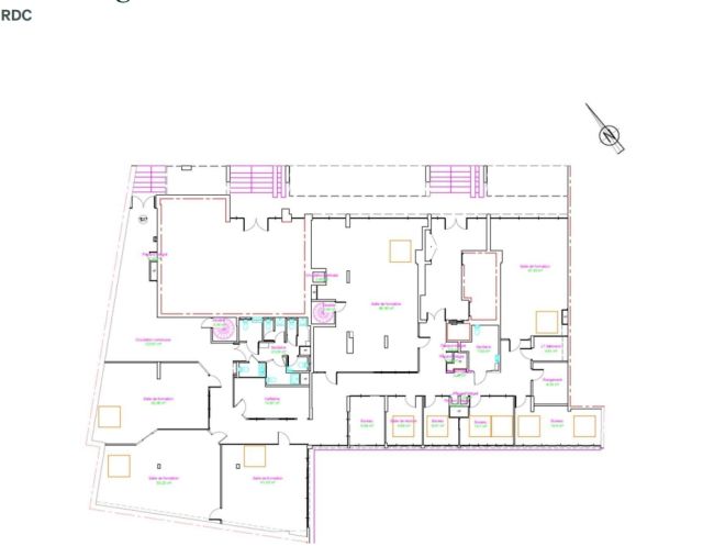
Au rez-de-chaussée et sous-sol, 585 m² de bureaux répartis en espaces ouverts et cloisonnés.

Possibilité de décloisonner.

Possibilité ERP.

Escalier intérieur.

Faux-plafonds, doubles vitrages.

Câblage informatique.

Etat des biens : bon état d'usage.

Les biens s'inscrivent dans un immeuble récent, principalement constitué d'un bâtiment sur rue et cour.

A destination mixte, de bureaux et résidentiel, l'immeuble est détenu en copropriété.

Ses façades modernes sont en bon état de ravalement, et ses parties communes de bon standing.

Ses prestations générales regroupent ascenseurs, interphone, digicode, gardien et accès sécurisés

Les informations sur les risques auxquels ce bien est exposé sont disponibles sur le site Géorisques : www.georisques.gouv.fr.

Tableau de surfaces

Niveau Type Surface Prix* Charges**
Rez de chaussée BUREAUX 515 m² NC NC
Sous-sol BUREAUX 70 m² NC NC

*Prix exprimé en €/m²
**Charges exprimées en € HT/m²/an

Parking Nombre Prix /unité
Intérieur 8 0 €

Conditions financières et juridiques

5 983 € / m²

Plus faible valeur du marché

4 791 € / m²

Plus forte valeur du marché

13 146 € / m²
  • Prix net vendeur

    3 500 000 €

  • Charges annuelles

    En cours de validation

  • Impôt foncier

    En cours de validation

  • Taxe sur les bureaux

    En cours de validation

  • Consommation énergétique

    En cours

  • Gaz à effet de serre

    En cours

  • Surfaces et affectations en cours de validation
  • Cession de l'actif libre de location ou d'occupation.
  • Vente de gré à gré.
  • Cession soumise aux droits d'enregistrement.
  • Le prix de vente s'exprime NET VENDEUR. L'assiette utilisée pour le calcul les droits de mutation n'inclut pas les honoraires hors TVA à la charge de l'acquéreur.

PARTAGER

Valérie AKNIN

Valérie AKNIN

Nous appeler
Selectionner cette offre Imprimer cette offre Partager cette offre par email
Réf. 6240

Les offres similaires