Transport en commun Convention

Des bureaux à vendre à PARIS 15 (75015), métro Convention, 200 m² de bureaux dans un immeuble récent.

Convention

200 m² non-divisibles

2 000 000 €
10 000 €/m²


Immeuble, prestations et services

Espace extérieur ERP/PMR Gardien Standing

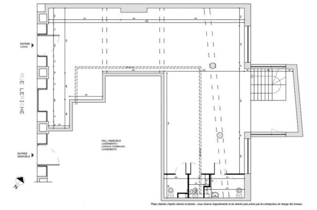
RDC avec accès sur rue, composé de 2 opens paces et 2 sanitaires dont 1 PMR.

Kitchenette.

Escalier intérieur.

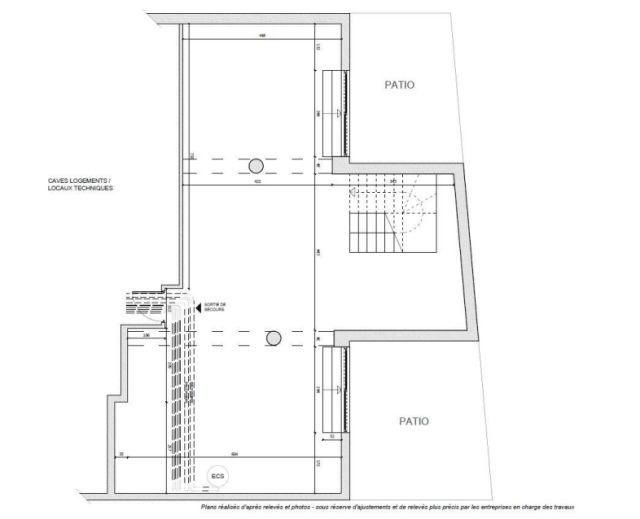
Sous-sol composé de 3 bureaux fermés, un open space et 2 terrasses.

Faux-plafonds, doubles vitrages.

Câblage informatique.

Climatisation réversible.

Etat des biens : bon état.

Les biens s'inscrivent dans un immeuble récent, principalement constitué d'un bâtiment sur rue et cour.

A destination exclusive de bureaux, l'immeuble est détenu en copropriété.

Ses façades modernes sont en bon état de ravalement, et ses parties communes de bon standing.

Ses prestations générales regroupent ascenseurs, interphone, digicode, gardien et accès sécurisés.

Les informations sur les risques auxquels ce bien est exposé sont disponibles sur le site Géorisques : www.georisques.gouv.fr.

Tableau de surfaces

Niveau Type Surface Prix* Charges**
Rez de chaussée BUREAUX 130 m² NC NC
Sous-sol BUREAUX 70 m² NC NC

*Prix exprimé en €/m²
**Charges exprimées en € HT/m²/an

Conditions financières et juridiques

10 000 € / m²

Plus faible valeur du marché

4 791 € / m²

Plus forte valeur du marché

13 146 € / m²
  • Prix net vendeur

    2 000 000 €

  • Charges annuelles

    3 900 €

  • Impôt foncier

    En cours de validation

  • Taxe sur les bureaux

    En cours de validation

  • Consommation énergétique

    En cours

  • Gaz à effet de serre

    En cours

  • Surfaces et affectations en cours de validation
  • Cession de l'actif libre de location ou d'occupation.
  • Vente de gré à gré.
  • Cession soumise aux droits d'enregistrement.
  • Le prix de vente s'exprime NET VENDEUR. L'assiette utilisée pour le calcul les droits de mutation n'inclut pas les honoraires hors TVA à la charge de l'acquéreur.

PARTAGER

Valérie AKNIN

Valérie AKNIN

Nous appeler
Selectionner cette offre Imprimer cette offre Partager cette offre par email
Réf. 6236

Les offres similaires