Des bureaux à vendre à PARIS 15 (75015), métro Dupleix, 303 m² de bureaux dans un immeuble moderne.

Dupleix

303 m² non-divisibles

1 600 000 €
5 281 €/m²


Immeuble, prestations et services

Espaces ouverts ERP/PMR Gardien Standing

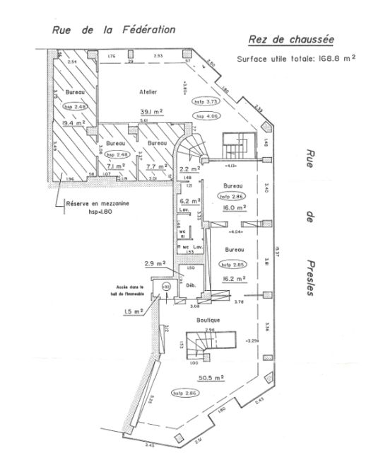
Au rez-de-chaussée, sous-sol et mezzanine, 303 m² de bureaux répartis en espaces ouverts et cloisonnés.

Plateau très lumineux.

Peu de contraintes porteuses au RdC.

Belle hauteur sous-plafond.

Moquette, faux-plafonds, doubles vitrages.

Câblage informatique.

Climatisation.

Monte Charge.

Grand linéaire de plusieurs dizaine de mètres donnant sur 3 rues.

Plusieurs accès indépendants.

Etat des biens : état général d'usage.

Les biens s'inscrivent dans un immeuble d'angle des années 50, principalement constitué d'un bâtiment sur rue et cour.

A destination mixte, de bureaux et résidentiel, l'immeuble est détenu en copropriété.

Ses façades modernes sont en bon état de ravalement, et ses parties communes de bon standing.

Ses prestations générales regroupent ascenseurs, interphone, digicode, gardien et accès sécurisés.

Les informations sur les risques auxquels ce bien est exposé sont disponibles sur le site Géorisques : www.georisques.gouv.fr.

Tableau de surfaces

Niveau Type Surface Prix* Charges**
Mezzanine BUREAUX 50 m² NC NC
Rez de chaussée BUREAUX 148 m² NC NC
Sous-sol BUREAUX 105 m² NC NC

*Prix exprimé en €/m²
**Charges exprimées en € HT/m²/an

Conditions financières et juridiques

5 281 € / m²

Plus faible valeur du marché

4 791 € / m²

Plus forte valeur du marché

13 146 € / m²
  • Prix net vendeur

    1 600 000 €

  • Charges annuelles

    En cours de validation

  • Impôt foncier

    En cours de validation

  • Taxe sur les bureaux

    En cours de validation

  • Consommation énergétique

    En cours

  • Gaz à effet de serre

    En cours

  • Surfaces et affectations en cours de validation
  • Cession de l'actif libre de location ou d'occupation.
  • Vente de gré à gré.
  • Cession soumise aux droits d'enregistrement.
  • Le prix de vente s'exprime NET VENDEUR. L'assiette utilisée pour le calcul les droits de mutation n'inclut pas les honoraires hors TVA à la charge de l'acquéreur.

PARTAGER

Valérie AKNIN

Valérie AKNIN

Nous appeler
Selectionner cette offre Imprimer cette offre Partager cette offre par email
Réf. 6153

Les offres similaires