Transport en commun Alésia

Des bureaux à vendre à PARIS 14 (75014), métro Alésia, 814 m² de bureaux dans un immeuble ancien.

Alésia

814 m² non-divisibles

5 000 000 €
6 143 €/m²


Immeuble, prestations et services

Espaces ouverts Immeuble indépendant ERP/PMR Gardien Standing

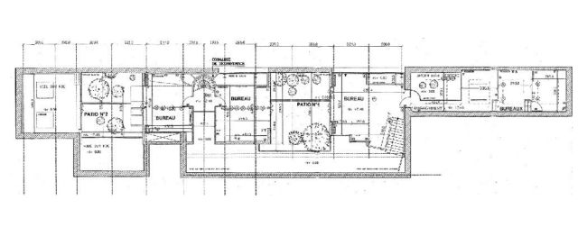
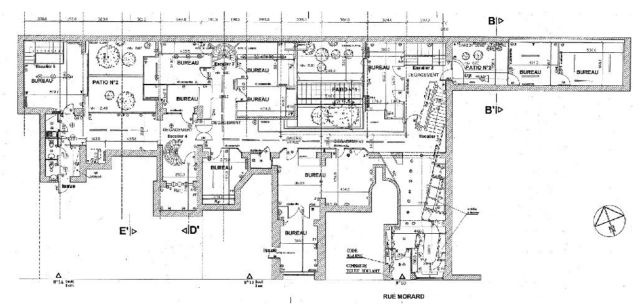
En R+2, 814 m² de bureaux clairs et calmes, répartis en bureaux cloisonnés et espaces ouverts.

Bureaux atypiques sous verrieres organisés autour de 3 patios intérieurs.

Nombreuses verrières. Bel accueil.

Belles hauteurs sous plafond. Chauffage électrique

2 issues de secours, accès PMR.

Trois patios intérieurs plantés, un des patios intérieurs est accessible.

Etat des biens : restructurés.

Les biens s'inscrivent dans un immeuble indépendant, construit dans les années 1910 et restructuré, principalement constitué d'un bâtiment sur rue et cour.

A destination exclusive de bureaux, l'immeuble est détenu en copropriété.

Ses façades pierres de taille sont en bon état de ravalement, ses parties communes de bon standing.

Ses prestations générales regroupent ascenseurs, interphone, digicode, gardien et accès sécurisés.

Les informations sur les risques auxquels ce bien est exposé sont disponibles sur le site Géorisques : www.georisques.gouv.fr.

Tableau de surfaces

Niveau Type Surface Prix* Charges**
Rez de jardin BUREAUX 303 m² NC NC
Rez de chaussée BUREAUX 379 m² NC NC
Etage BUREAUX 132 m² NC NC

*Prix exprimé en €/m²
**Charges exprimées en € HT/m²/an

Conditions financières et juridiques

6 143 € / m²

Plus faible valeur du marché

5 460 € / m²

Plus forte valeur du marché

10 409 € / m²
  • Prix net vendeur

    5 000 000 €

  • Charges annuelles

    14 652 €

  • Impôt foncier

    21,21 €

  • Taxe sur les bureaux

    20,79 €

  • Consommation énergétique

    En cours

  • Gaz à effet de serre

    En cours

  • Surfaces et affectations en cours de validation
  • Cession de l'actif libre de location ou d'occupation.
  • Vente de gré à gré.
  • Cession soumise aux droits d'enregistrement.
  • Le prix de vente s'exprime NET VENDEUR. L'assiette utilisée pour le calcul les droits de mutation n'inclut pas les honoraires hors TVA à la charge de l'acquéreur.

PARTAGER

Valérie AKNIN

Valérie AKNIN

Nous appeler
Selectionner cette offre Imprimer cette offre Partager cette offre par email
Réf. 6190

Les offres similaires