Des bureaux à vendre à PARIS 14 (75014), métro Plaisance, 653 m² de bureaux dans un immeuble récent.

Plaisance

653 m² non-divisibles

5 950 000 €
9 112 €/m²


Immeuble, prestations et services

Climatisation Espaces ouverts Chauffage collectif Cuisine Espace extérieur ERP/PMR Gardien Standing

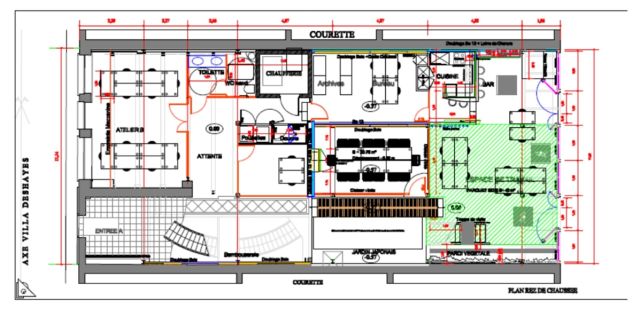
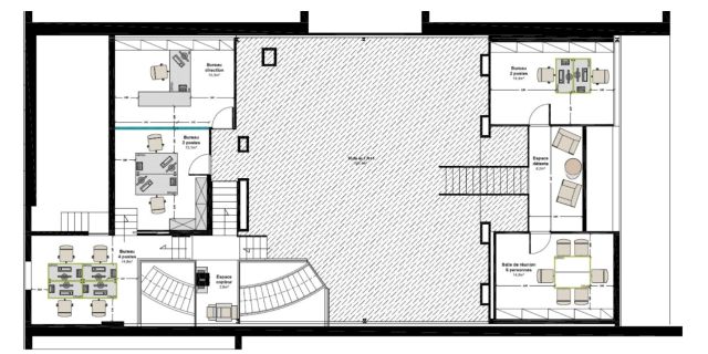
En R+2, 653 m² de bureaux répartis en locaux fonctionnels, avec alternance d'espaces ouverts et de bureaux cloisonnés.

Salle de réunion partagée, cuisine, 4 sanitaires.

Cloisonnement vitré de qualité.

Locaux atypiques plug and play.

Beaux volumes.

Parquet, magnifique verrière.

Câblage RJ45.

Chaudière au gaz, climatisation réversible.

Alarme.

Double accès sur la Villa Deshayes et un accès rue Ledion.

Terrasse de 23 m².

Etat des biens : bon état.

Les biens s'inscrivent dans un immeuble récent, principalement constitué d'un bâtiment sur rue et cour.

A destination exclusive de bureaux, l'immeuble est détenu en copropriété.

Ses façades modernes sont en bon état de ravalement, et ses parties communes de bon standing.

Les prestations de chauffage sont produites par l'immeuble.

Ses prestations générales regroupent ascenseurs, interphone, digicode, gardien et accès sécurisés.

Les informations sur les risques auxquels ce bien est exposé sont disponibles sur le site Géorisques : www.georisques.gouv.fr.

Tableau de surfaces

Niveau Type Surface Prix* Charges**
Rez de chaussée BUREAUX 244 m² NC NC
Entresol BUREAUX 150 m² NC NC
Etage BUREAUX 213 m² NC NC
Etage BUREAUX 46 m² NC NC

*Prix exprimé en €/m²
**Charges exprimées en € HT/m²/an

Conditions financières et juridiques

9 112 € / m²

Plus faible valeur du marché

5 460 € / m²

Plus forte valeur du marché

10 409 € / m²
  • Prix net vendeur

    5 950 000 €

  • Charges annuelles

    En cours de validation

  • Impôt foncier

    En cours de validation

  • Taxe sur les bureaux

    En cours de validation

  • Consommation énergétique

    En cours

  • Gaz à effet de serre

    En cours

  • Surfaces et affectations en cours de validation
  • Cession de l'actif libre de location ou d'occupation.
  • Vente de gré à gré.
  • Cession soumise aux droits d'enregistrement.
  • Le prix de vente s'exprime NET VENDEUR. L'assiette utilisée pour le calcul les droits de mutation n'inclut pas les honoraires hors TVA à la charge de l'acquéreur.

PARTAGER

Valérie AKNIN

Valérie AKNIN

Nous appeler
Selectionner cette offre Imprimer cette offre Partager cette offre par email
Réf. 6072

Les offres similaires