Transport en commun MICHEL BIZOT

Des bureaux à vendre à PARIS 12 (75012), métro MICHEL BIZOT, 529 m² de bureaux dans un immeuble récent.

MICHEL BIZOT

529 m² non-divisibles

3 900 000 €
7 373 €/m²


Immeuble, prestations et services

Espaces ouverts Parking ERP/PMR Gardien Standing

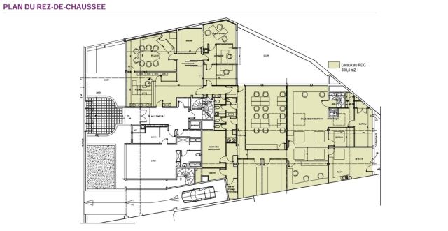
Au rez-de-chaussée et sous-sol, 529 m² de bureaux traversants, modulables et lumineux répartis en espaces ouverts et cloisonnés.

Accès Personnes Mobilités Réduites possible sur le 1er niveau, ERP 1.

Belle hauteur sous plafond.

Fonctionnement indépendant.

2 espaces extérieurs.

Climatisation réversible.

Fibre optique.

Etat des biens : état d'usage.

Les biens s'inscrivent dans un immeuble récent,en R+8, principalement constitué d'un bâtiment sur rue et cour, sur la parcelle cadastrale AT3 d'une contenance de 847 m².

A destination mixte, de bureaux et résidentiel, l'immeuble est détenu en copropriété.

Ses façades modernes sont en bon état de ravalement, et ses parties communes de bon standing.

Ses prestations générales regroupent ascenseurs, interphone, digicode, gardien et accès sécurisés.

Les informations sur les risques auxquels ce bien est exposé sont disponibles sur le site Géorisques : www.georisques.gouv.fr.

Tableau de surfaces

Niveau Type Surface Prix* Charges**
Rez de chaussée BUREAUX 400 m² NC NC
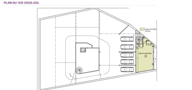
Sous-sol BUREAUX 70 m² NC NC
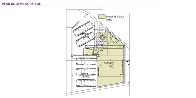
Sous-sol BUREAUX 59 m² NC NC

*Prix exprimé en €/m²
**Charges exprimées en € HT/m²/an

Parking Nombre Prix /unité
Intérieur 6 0 €

Conditions financières et juridiques

7 373 € / m²

Plus faible valeur du marché

7 373 € / m²

Plus forte valeur du marché

16 113 € / m²
  • Prix net vendeur

    3 900 000 €

  • Charges annuelles

    21 160 €

  • Impôt foncier

    6,7 €

  • Taxe sur les bureaux

    21,7 €

  • Consommation énergétique

    En cours

  • Gaz à effet de serre

    En cours

  • Surfaces et affectations en cours de validation
  • Cession de l'actif libre de location ou d'occupation.
  • Vente de gré à gré.
  • Cession soumise aux droits d'enregistrement.
  • Le prix de vente s'exprime NET VENDEUR. L'assiette utilisée pour le calcul les droits de mutation n'inclut pas les honoraires hors TVA à la charge de l'acquéreur.

PARTAGER

Valérie AKNIN

Valérie AKNIN

Nous appeler
Selectionner cette offre Imprimer cette offre Partager cette offre par email
Réf. 6089