Transport en commun Poissonnière

Des bureaux à vendre à PARIS 10 (75010), métro Poissonnière, 558 m² de bureaux dans un immeuble ancien.

Poissonnière

558 m² non-divisibles

5 600 000 €
10 036 €/m²


Immeuble, prestations et services

Espaces ouverts Espace extérieur ERP/PMR Immeuble Haussmannien Rénovés Gardien Standing

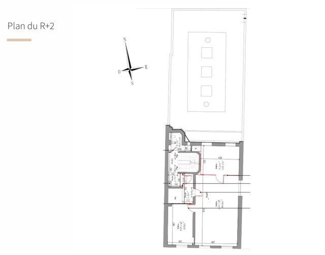
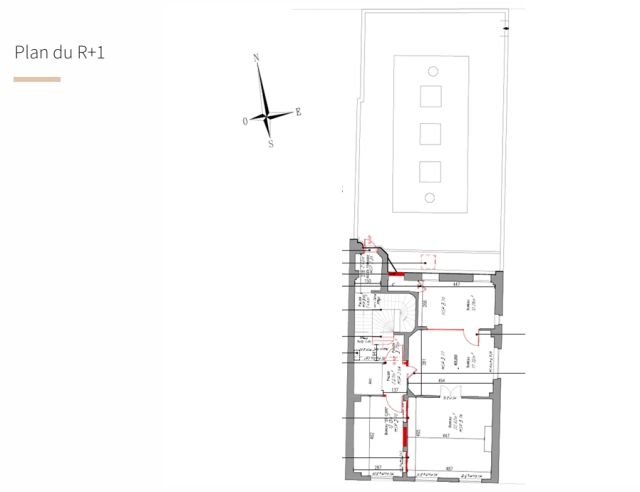
En R+3, 558 m² de bureaux répartis en espaces ouverts et cloisonnés.

Peu de contraintes porteuses par plateaux / facilement aménageable.

Charme de l’ancien au R+1.

Terrasse.

Faux-plafonds, doubles vitrages.

Câblage informatique.

Climatisation.

Etat des biens : rénovés en 2016.

Les biens s'inscrivent dans un immeuble haussmannien, principalement constitué d'un bâtiment sur rue et cour.

A destination mixte, de bureaux et résidentiel, l'immeuble est détenu en copropriété.

Ses façades pierres de taille sont en bon état de ravalement, ses parties communes de bon standing.

Ses prestations générales regroupent ascenseurs, interphone, digicode, gardien et accès sécurisés.

Les informations sur les risques auxquels ce bien est exposé sont disponibles sur le site Géorisques : www.georisques.gouv.fr.

Tableau de surfaces

Niveau Type Surface Prix* Charges**
Etage BUREAUX 66 m² NC NC
Etage BUREAUX 68 m² NC NC
Etage BUREAUX 68 m² NC NC
RDC Haut BUREAUX 90 m² NC NC
RDC Bas BUREAUX 35 m² NC NC
Rez de chauss BUREAUX 13 m² NC NC
Lot PARTIES COMMUNES 218 m² NC NC

*Prix exprimé en €/m²
**Charges exprimées en € HT/m²/an

Conditions financières et juridiques

10 036 € / m²

Plus faible valeur du marché

3 901 € / m²

Plus forte valeur du marché

14 942 € / m²
  • Prix net vendeur

    5 600 000 €

  • Charges annuelles

    En cours de validation

  • Impôt foncier

    18,17 €

  • Taxe sur les bureaux

    En cours de validation

  • Consommation énergétique

    En cours

  • Gaz à effet de serre

    En cours

  • Surfaces et affectations en cours de validation
  • Cession de l'actif libre de location ou d'occupation.
  • Vente de gré à gré.
  • Cession soumise aux droits d'enregistrement.
  • Le prix de vente s'exprime NET VENDEUR. L'assiette utilisée pour le calcul les droits de mutation n'inclut pas les honoraires hors TVA à la charge de l'acquéreur.

PARTAGER

Valérie AKNIN

Valérie AKNIN

Nous appeler
Selectionner cette offre Imprimer cette offre Partager cette offre par email
Réf. 6448

Les offres similaires