Transport en commun Goncourt

Des bureaux à vendre à PARIS 10 (75), métro Goncourt, 126 m² de bureaux dans un immeuble moderne.

Goncourt

126 m² non-divisibles

1 450 000 €
11 508 €/m²


Immeuble, prestations et services

Climatisation Salle de réunion Chauffage collectif ERP/PMR Gardien Standing

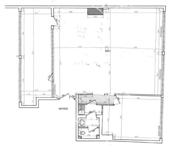
Au 1er étage, 126 m² de bureaux traversants et lumineux, répartis en un espace ouvert, une grande salle de réunion et un bureau fermé.

Parquet,, baies vitrées, poutres style Eiffel.

Belle hauteur-sous-plafond 3 mètres environ.

Câblage informatique, fibre optique.

Etat des biens : bon état.

Les biens s'inscrivent dans un immeuble moderne, principalement constitué d'un bâtiment sur rue et cour.

A destination mixte, de bureaux et résidentiel, l'immeuble est détenu en copropriété.

Ses façades modernes sont en bon état de ravalement, et ses parties communes de bon standing.

Les prestations de chauffage sont produites par l'immeuble (gaz).

Ses prestations générales regroupent ascenseurs, interphone, digicode, gardien et accès sécurisés.

Les informations sur les risques auxquels ce bien est exposé sont disponibles sur le site Géorisques : www.georisques.gouv.fr.

Tableau de surfaces

Niveau Type Surface Prix* Charges**
Etage BUREAUX 126 m² NC NC

*Prix exprimé en €/m²
**Charges exprimées en € HT/m²/an

Conditions financières et juridiques

11 508 € / m²

Plus faible valeur du marché

3 901 € / m²

Plus forte valeur du marché

14 942 € / m²
  • Prix net vendeur

    1 450 000 €

  • Charges annuelles

    8 820 €

  • Impôt foncier

    En cours de validation

  • Taxe sur les bureaux

    En cours de validation

  • Consommation énergétique

    En cours

  • Gaz à effet de serre

    En cours

  • Surfaces et affectations en cours de validation
  • Cession de l'actif libre de location ou d'occupation.
  • Vente de gré à gré.
  • Cession soumise aux droits d'enregistrement.
  • Le prix de vente s'exprime NET VENDEUR. L'assiette utilisée pour le calcul les droits de mutation n'inclut pas les honoraires hors TVA à la charge de l'acquéreur.

PARTAGER

Valérie AKNIN

Valérie AKNIN

Nous appeler
Selectionner cette offre Imprimer cette offre Partager cette offre par email
Réf. 6426

Les offres similaires