Transport en commun Bonne Nouvelle

Des bureaux à vendre à PARIS .. (75), métro , m² de bureaux divisibles à partir de m² dans un immeuble récent.

Bonne Nouvelle

571 m² non-divisibles

5 700 000 €
9 983 €/m²


Immeuble, prestations et services

Cuisine ERP/PMR Gardien Standing

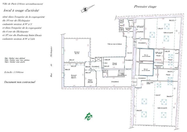
Au rez-de-chaussée et 1er étage, 571 m² de bureaux répartis en :

Au RDC : une très vaste salle de sport, un salon, un accueil, cuisine, vestiaires, local technique et sanitaires.

Au 1er étage : deux grandes salles de sport avec belle HSP, sept bureaux, joli patio, locaux techniques, douche et sanitaires.

Linéaire de vitrine de 8m avec 2 accès sur rue

Accès PMR , ERP 5 au RDC.

Faux-plafonds, doubles vitrages.

Câblage informatique.

Etat des biens : état d'usage.

Les biens s'inscrivent dans un immeuble difié dans les années 1880, en R+4 sur sous-sol, principalement constitué d'un bâtiment sur rue et cour, sur la parcelle cadastrale d'une contenance de m².

A destination mixte, bureaux et résidentiel, l'immeuble est détenu en copropriété.

Ses façades pierres sont en bon état de ravalement, ses parties communes de bon standing.

Ses prestations générales regroupent ascenseurs, interphone, digicode, gardien et accès sécurisés.

Les informations sur les risques auxquels ce bien est exposé sont disponibles sur le site Géorisques : www.georisques.gouv.fr.

Tableau de surfaces

Niveau Type Surface Prix* Charges**
Lot BUREAUX 571 m² NC NC

*Prix exprimé en €/m²
**Charges exprimées en € HT/m²/an

Conditions financières et juridiques

9 983 € / m²

Plus faible valeur du marché

3 901 € / m²

Plus forte valeur du marché

14 942 € / m²
  • Prix net vendeur

    5 700 000 €

  • Charges annuelles

    En cours de validation

  • Impôt foncier

    En cours de validation

  • Taxe sur les bureaux

    En cours de validation

  • Consommation énergétique

    En cours

  • Gaz à effet de serre

    En cours

  • Surfaces et affectations en cours de validation
  • Cession de l'actif libre de location ou d'occupation.
  • Vente de gré à gré.
  • Cession soumise aux droits d'enregistrement.
  • Le prix de vente s'exprime NET VENDEUR. L'assiette utilisée pour le calcul les droits de mutation n'inclut pas les honoraires hors TVA à la charge de l'acquéreur.

PARTAGER

Valérie AKNIN

Valérie AKNIN

Nous appeler
Selectionner cette offre Imprimer cette offre Partager cette offre par email
Réf. 6409

Les offres similaires