Transport en commun Gare du Nord

Des bureaux à vendre à PARIS 10 (75010), métro Gare du Nord, 315 m² de bureaux dans un immeuble ancien.

Gare du Nord

315 m² non-divisibles

3 250 000 €
10 318 €/m²


Immeuble, prestations et services

Climatisation Espaces ouverts Salle de réunion Cuisine ERP/PMR Rénovés Gardien Standing

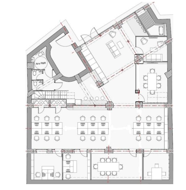
Au rez-de-chaussée et sous-sol, 315 m² de bureaux atypiques, répartis en espaces ouverts et cloisonnés.

RDC : un grand open space, 4 bureaux sous verrière, 2 salles de réunions, 2 phones box, coin cuisine et sanitaires (dont 1 PMR).

Sous-sol: Bel espace de vie, grande salle de réunion, sanitaires et douche.

Très belle hauteur sous plafond (3,5m).

Câblage informatique, fibre optique.

Climatisation réversible.

Etat des biens : rénovés.

Les biens s'inscrivent dans un immeuble ancien, principalement constitué d'un bâtiment sur rue et cour.

A destination mixte, de bureaux et résidentiel, l'immeuble est détenu en copropriété.

Ses façades pierres de taille sont en bon état de ravalement, ses parties communes de bon standing.

Ses prestations générales regroupent ascenseurs, interphone, digicode, gardien et accès sécurisés.

Les informations sur les risques auxquels ce bien est exposé sont disponibles sur le site Géorisques : www.georisques.gouv.fr.

Tableau de surfaces

Niveau Type Surface Prix* Charges**
Rez de chaussée BUREAUX 229 m² NC NC
Sous-sol BUREAUX 86 m² NC NC

*Prix exprimé en €/m²
**Charges exprimées en € HT/m²/an

Conditions financières et juridiques

10 318 € / m²

Plus faible valeur du marché

3 901 € / m²

Plus forte valeur du marché

14 942 € / m²
  • Prix net vendeur

    3 250 000 €

  • Charges annuelles

    9 765 €

  • Impôt foncier

    20 €

  • Taxe sur les bureaux

    25,31 €

  • Consommation énergétique

    En cours

  • Gaz à effet de serre

    En cours

  • Surfaces et affectations en cours de validation
  • Cession de l'actif libre de location ou d'occupation.
  • Vente de gré à gré.
  • Cession soumise aux droits d'enregistrement.
  • Le prix de vente s'exprime NET VENDEUR. L'assiette utilisée pour le calcul les droits de mutation n'inclut pas les honoraires hors TVA à la charge de l'acquéreur.

PARTAGER

Valérie AKNIN

Valérie AKNIN

Nous appeler
Selectionner cette offre Imprimer cette offre Partager cette offre par email
Réf. 6408

Les offres similaires