Transport en commun Gare de l'Est

Des bureaux à vendre à PARIS 10 (75010), métro Gare de l'Est, 200 m² de bureaux divisibles à partir de 85 m² dans un immeuble ancien.

Gare de l'Est

200 m² non-divisibles

2 400 000 €
12 000 €/m²


Immeuble, prestations et services

Climatisation Espaces ouverts Salle de réunion Cuisine ERP/PMR Rénovés Gardien Standing

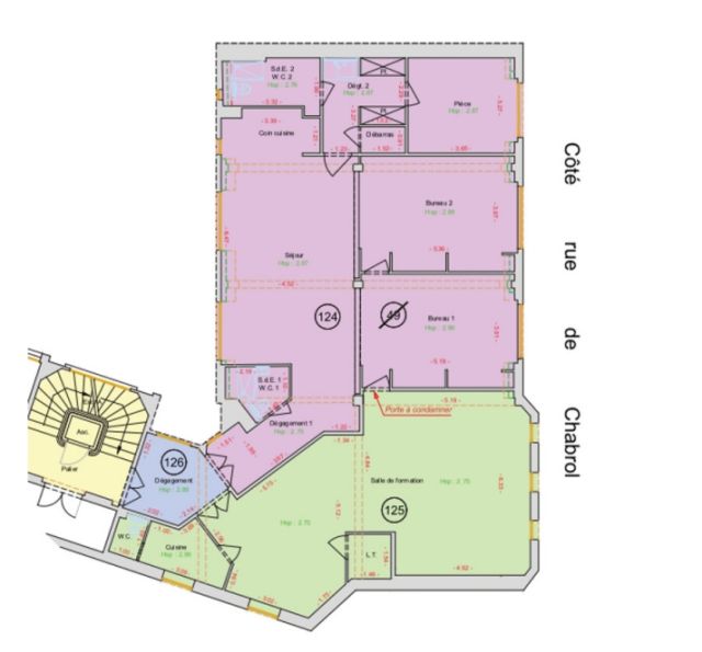
Au 6ème étage, 200 m² de bureaux répartis en espaces ouverts, salle de réunion, cuisine.

Parquet, faux-plafonds, doubles vitrages.

Câblage informatique, fibre optique.

Chauffage individuel électrique gaz fuel climatisation simple flux double flux.

Travaux récents (réalisés en 2021) : des fenêtres double vitrage, une isolation performante, une révision des installations électrique et parquet massif.

Etat des biens : rénovés

Les biens s'inscrivent dans un immeuble des années '30, principalement constitué d'un bâtiment sur rue et cour.

A destination mixte, de bureaux et résidentiel, l'immeuble est détenu en copropriété.

Ses façades pierres de taille sont en bon état de ravalement, ses parties communes de bon standing.

Ses prestations générales regroupent ascenseurs, interphone, digicode, gardien et accès sécurisés.

Les informations sur les risques auxquels ce bien est exposé sont disponibles sur le site Géorisques : www.georisques.gouv.fr.

Tableau de surfaces

Niveau Type Surface Prix* Charges**
Etage BUREAUX 200 m² NC NC

*Prix exprimé en €/m²
**Charges exprimées en € HT/m²/an

Conditions financières et juridiques

12 000 € / m²

Plus faible valeur du marché

3 901 € / m²

Plus forte valeur du marché

14 942 € / m²
  • Prix net vendeur

    2 400 000 €

  • Charges annuelles

    7 000 €

  • Impôt foncier

    19,1 €

  • Taxe sur les bureaux

    25,31 €

  • Consommation énergétique

    En cours

  • Gaz à effet de serre

    En cours

  • Surfaces et affectations en cours de validation
  • Cession de l'actif libre de location ou d'occupation.
  • Vente de gré à gré.
  • Cession soumise aux droits d'enregistrement.
  • Le prix de vente s'exprime NET VENDEUR. L'assiette utilisée pour le calcul les droits de mutation n'inclut pas les honoraires hors TVA à la charge de l'acquéreur.

PARTAGER

Valérie AKNIN

Valérie AKNIN

Nous appeler
Selectionner cette offre Imprimer cette offre Partager cette offre par email
Réf. 6394

Les offres similaires