Transport en commun STRASBOURG-ST-DENIS

Des bureaux à vendre à PARIS 10 (75010), métro Strasbourg St Denis, 328 m² de bureaux dans un immeuble ancien.

STRASBOURG-ST-DENIS

328 m² non-divisibles

3 600 000 €
10 976 €/m²


Immeuble, prestations et services

Climatisation ERP/PMR Gardien Standing

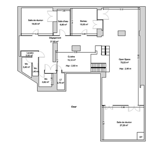
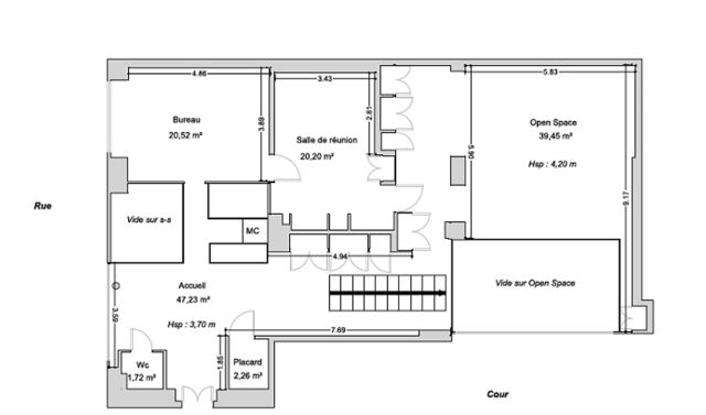
Au rez-de-chaussée et sous-sol, 328 m² de bureaux atypiques, répartis en 2 open space, 2 bureaux cloisonnés, 4 sanitaires privatifs, douche.

Hauteur sous-plafond : 4,50 mètre(s).

Eclairage bureaux : Spots.

Parquet.

Câblage informatique.

Chauffage individuel au gaz, climatisation.

Monte-charge.

Piscine privée intérieure.

Accès indépendant sur rue à venir.

Etat des biens : très bon état général.

Les biens s'inscrivent dans un immeuble en pierre de taille, principalement constitué d'un bâtiment sur rue et cour

A destination mixte, de bureaux et résidentiel, l'immeuble est détenu en copropriété.

Ses façades pierres de taille sont en bon état de ravalement, ses parties communes de bon standing.

Ses prestations générales regroupent ascenseurs, interphone, digicode, gardien et accès sécurisés.

Les informations sur les risques auxquels ce bien est exposé sont disponibles sur le site Géorisques : www.georisques.gouv.fr.

Tableau de surfaces

Niveau Type Surface Prix* Charges**
Rez de chaussée BUREAUX 137 m² NC NC
Sous-sol BUREAUX 191 m² NC NC

*Prix exprimé en €/m²
**Charges exprimées en € HT/m²/an

Conditions financières et juridiques

10 976 € / m²

Plus faible valeur du marché

3 901 € / m²

Plus forte valeur du marché

14 942 € / m²
  • Prix net vendeur

    3 600 000 €

  • Charges annuelles

    7 872 €

  • Impôt foncier

    En cours de validation

  • Taxe sur les bureaux

    En cours de validation

  • Consommation énergétique

    En cours

  • Gaz à effet de serre

    En cours

  • Surfaces et affectations en cours de validation
  • Cession de l'actif libre de location ou d'occupation.
  • Vente de gré à gré.
  • Cession soumise aux droits d'enregistrement.
  • Le prix de vente s'exprime NET VENDEUR. L'assiette utilisée pour le calcul les droits de mutation n'inclut pas les honoraires hors TVA à la charge de l'acquéreur.

PARTAGER

Valérie AKNIN

Valérie AKNIN

Nous appeler
Selectionner cette offre Imprimer cette offre Partager cette offre par email
Réf. 6333

Les offres similaires