Transport en commun Gare du Nord

Des bureaux à vendre à PARIS 10 (75010), métro Gare du Nord, 240 m² de bureaux dans un immeuble récent classé ERP 2.

Gare du Nord

220 m² non-divisibles

2 700 000 €
12 273 €/m²


Immeuble, prestations et services

Climatisation Salle de réunion Parking Chauffage collectif Cuisine ERP/PMR Rénovés Gardien Standing

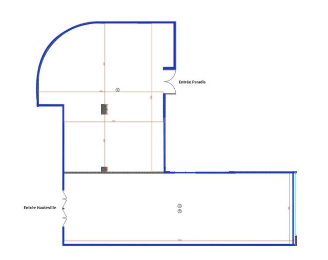
Au rez de chaussée, 220 m² de bureaux répartis en en un grand espace ouvert donnant sur cour, une salle de réunion vitrée et une cuisine.

Très belle hauteur sous plafond.

Climatisation réversible.

Câblage informatique neuf, fibre optique.

Sanitaires sur le palier.

Etat des biens : entièrement rénovés.

Les biens s'inscrivent dans un immeuble récent classé ERP 1, construit dans les années 1975, principalement constitué d'un bâtiment sur rue et cour.

A destination de bureaux, ses façades modernes sont en bon état de ravalement.

Ses parties communes sont de bon standing.

Les prestations de chauffage (CPCU) et de climatisation sont produites par l'immeuble.

Les prestations générales regroupent hôtesse d'accueil, conciergerie, gardiennage 24h/24, PC de sécurité, vidéo-surveillance, ascenseurs, monte-charges, interphone, digicode, gardien, accès sécurisés.

Tableau de surfaces

Niveau Type Surface Prix* Charges**
Rez de chaussée BUREAUX 220 m² NC NC

*Prix exprimé en €/m²
**Charges exprimées en € HT/m²/an

Parking Nombre Prix /unité
Intérieur 4 0 €

Conditions financières et juridiques

12 273 € / m²

Plus faible valeur du marché

3 901 € / m²

Plus forte valeur du marché

14 942 € / m²
  • Prix net vendeur

    2 700 000 €

  • Charges annuelles

    17 600 €

  • Impôt foncier

    4 €

  • Taxe sur les bureaux

    24,69 €

  • Consommation énergétique

    En cours

  • Gaz à effet de serre

    En cours

  • Surfaces et affectations en cours de validation
  • Cession de l'actif libre de location ou d'occupation.
  • Vente de gré à gré.
  • Cession soumise aux droits d'enregistrement.
  • Le prix de vente s'exprime NET VENDEUR. L'assiette utilisée pour le calcul les droits de mutation (7,5% environ) n'inclut pas les honoraires hors TVA à la charge de l'acquéreur.

PARTAGER

Valérie AKNIN

Valérie AKNIN

Nous appeler
Selectionner cette offre Imprimer cette offre Partager cette offre par email
Réf. 6177

Les offres similaires