Transport en commun Gare du Nord

Des bureaux à vendre à PARIS 11 (75), métro Gare du Nord, 130 m² de bureaux atypiques de style industriel dans un immeuble ancien.

Gare du Nord

130 m² non-divisibles

930 000 €
7 154 €/m²


Immeuble, prestations et services

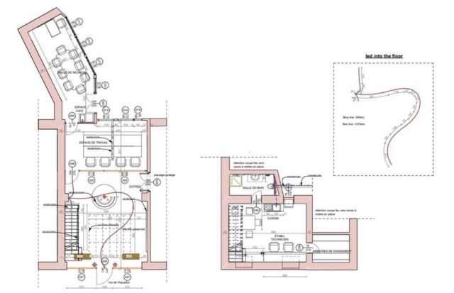
Salle de réunion Cuisine ERP/PMR Gardien Standing

Au rez-de-chaussée et sous-sol, 120 m² de bureaux répartis en deux open-space et une pièce pouvant servir de salle de réunion au RDC et un sous-sol aménagée avec cuisine équipée.

Linéaire de vitrine de 4,5 mètres environ.

Chauffage électrique

Accès sur la cour de l'immeuble.

Cuisine équipée, salle de bain.

Belle luminosité.

Béton peint.

Etat des biens : bon état.

Les biens s'inscrivent dans un immeuble ancien, principalement constitué d'un bâtiment sur rue et cour.

A destination mixte, de bureaux et résidentiel, l'immeuble est détenu en copropriété.

Ses façades pierres de taille sont en bon état de ravalement, ses parties communes de bon standing.

Ses prestations générales regroupent ascenseurs, interphone, digicode, gardien et accès sécurisés.

Les informations sur les risques auxquels ce bien est exposé sont disponibles sur le site Géorisques : www.georisques.gouv.fr.

Tableau de surfaces

Niveau Type Surface Prix* Charges**
Sous-sol BUREAUX 35 m² NC NC
Rez de chaussée BUREAUX 71 m² NC NC
Rez de chaussée BUREAUX 24 m² NC NC

*Prix exprimé en €/m²
**Charges exprimées en € HT/m²/an

Conditions financières et juridiques

7 154 € / m²

Plus faible valeur du marché

3 901 € / m²

Plus forte valeur du marché

14 942 € / m²
  • Prix net vendeur

    930 000 €

  • Charges annuelles

    3 295 €

  • Impôt foncier

    En cours de validation

  • Taxe sur les bureaux

    24,69 €

  • Consommation énergétique

    En cours

  • Gaz à effet de serre

    En cours

  • Surfaces et affectations en cours de validation
  • Cession de l'actif libre de location ou d'occupation.
  • Vente de gré à gré.
  • Cession soumise aux droits d'enregistrement.
  • Le prix de vente s'exprime NET VENDEUR. L'assiette utilisée pour le calcul les droits de mutation n'inclut pas les honoraires hors TVA à la charge de l'acquéreur.

PARTAGER

Valérie AKNIN

Valérie AKNIN

Nous appeler
Selectionner cette offre Imprimer cette offre Partager cette offre par email
Réf. 6114

Les offres similaires