Transport en commun GONCOURT

Un immeuble indépendant des bureaux à vendre à PARIS 10 (75010), métro GONCOURT, 765 m² dans un immeuble restructuré.

GONCOURT

765 m² non-divisibles

10 200 000 €
13 334 €/m²


Immeuble, prestations et services

Climatisation Immeuble indépendant

Établissement relevant du Code du Travail dont le plancher le plus élevé est inférieur à 8 m avec moins 100 personnes.

Réglementation Thermique 2012 en vigueur à la date de dépôt du permis de construire.

Certification BREEAM niveau VERY GOOD.

Effectif admissible sécuritaire : Les dégagements ont été calculés pour un effectif sécuritaire total de 100 personnes

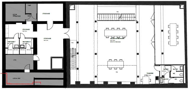
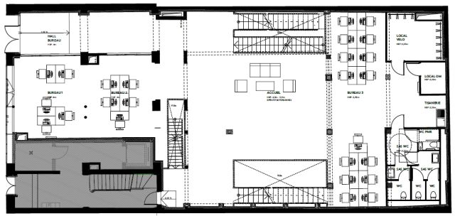
Hauteur libre : • 3.00 m au RDC bas. • 4 m dans le hall et les bureaux donnant sur la rue Jacque Louvel-Tessier au RDC. • 4,5 à 5.9 m dans les bureaux du RDC sous verrières. • 2,40 m en mezzanine. • 2,89 m au R+1.

Les biens s'inscrivent dans un immeuble restructuré, principalement constitué d'un bâtiment sur rue.

A destination exclusive de bureaux, l'immeuble est détenu en pleine propriété.

Ses façades sont en bon état de ravalement.

Système de climatisation réversible de type Débit de Réfrigérant Variable (DRV) à très haute performance.

Traitement de l'air : CTA Double flux CIAT Floway Classic RHE 3000 pour un Systèmes de ventilation de « confort »

Les informations sur les risques auxquels ce bien est exposé sont disponibles sur le site Géorisques : www.georisques.gouv.fr.

Tableau de surfaces

Niveau Type Surface Prix* Charges**
Etage BUREAUX 89 m² NC NC
Rez de chaussée BUREAUX 269 m² NC NC
RDC Bas BUREAUX 311 m² NC NC
Mezzanine BUREAUX 96 m² NC NC

*Prix exprimé en €/m²
**Charges exprimées en € HT/m²/an

Conditions financières et juridiques

13 334 € / m²

Plus faible valeur du marché

3 901 € / m²

Plus forte valeur du marché

14 942 € / m²
  • Prix net vendeur

    10 200 000 €

  • Charges annuelles

    En cours de validation

  • Impôt foncier

    En cours de validation

  • Taxe sur les bureaux

    24,69 €

  • Consommation énergétique

    En cours

  • Gaz à effet de serre

    En cours

  • Surfaces et affectations en cours de validation
  • Cession de l'actif libre de location ou d'occupation.
  • Vente de gré à gré.
  • Cession soumise aux droits d'enregistrement réduits.
  • Le prix de vente s'exprime NET VENDEUR. L'assiette utilisée pour le calcul les droits de mutation n'inclut pas les honoraires hors TVA à la charge de l'acquéreur.

PARTAGER

Valérie AKNIN

Valérie AKNIN

Nous appeler
Selectionner cette offre Imprimer cette offre Partager cette offre par email
Réf. 6106

Les offres similaires