Transport en commun Barbès Rochechouart

Des bureaux à vendre à PARIS 10 (75010), métro, Barbès Rochechouart 192 m² de bureaux divisibles à partir de 49 m² dans un immeuble ancien.

Barbès Rochechouart

194 m² divisibles à partir de 49 m²

1 800 000 €
9 279 €/m²


Immeuble, prestations et services

Cuisine ERP/PMR Gardien Standing

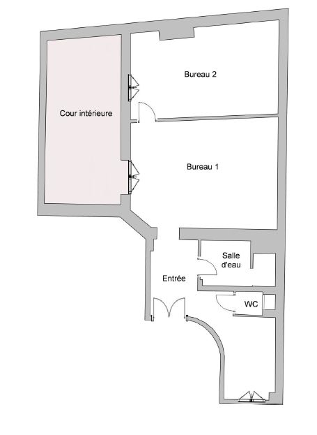
Lot 3 : Rez-de-chaussée : Bureau ouvert, bureau, sanitaires

Sous-sol : réserve, sanitaires

Lot 38 :entrée, cuisine, 2 bureaux, salle d'eau, sanitaires

Cour intérieure de 15 m².

Prix de vente Lot 3 : 1 625 000 € HT HD

Prix de vente Lot 38 : 625 000 € HT HD

Etat des biens : état d'usage.

Les biens s'inscrivent dans un immeuble ancien, principalement constitué d'un bâtiment sur rue et cour.

A destination mixte, de bureaux et résidentiel, l'immeuble est détenu en copropriété.

Ses façades modernes sont en bon état de ravalement, et ses parties communes de bon standing.

Ses prestations générales regroupent ascenseurs, interphone, digicode, gardien et accès sécurisés.

Tableau de surfaces

Niveau Type Surface Prix* Charges**
Rez de chaussée BUREAUX 123 m² 11 206 € NC
Sous-sol BUREAUX 22 m² 11 206 € NC
Rez de chaussée BUREAUX 49 m² 12 755 € NC

*Prix exprimé en €/m²
**Charges exprimées en € HT/m²/an

Conditions financières et juridiques

9 279 € / m²

Plus faible valeur du marché

3 901 € / m²

Plus forte valeur du marché

14 942 € / m²
  • Prix net vendeur

    1 800 000 €

  • Charges annuelles

    En cours de validation

  • Impôt foncier

    En cours de validation

  • Taxe sur les bureaux

    24,69 €

  • Consommation énergétique

    En cours

  • Gaz à effet de serre

    En cours

  • Surfaces et affectations en cours de validation
  • Cession de l'actif libre de location ou d'occupation.
  • Vente de gré à gré.
  • Cession soumise aux droits d'enregistrement.
  • Le prix de vente s'exprime NET VENDEUR. L'assiette utilisée pour le calcul les droits de mutation n'inclut pas les honoraires hors TVA à la charge de l'acquéreur.

PARTAGER

Valérie AKNIN

Valérie AKNIN

Nous appeler
Selectionner cette offre Imprimer cette offre Partager cette offre par email
Réf. 6012

Les offres similaires