Transport en commun Gare du Nord

Des bureaux à vendre à PARIS 10 (75010), métro Gare du Nord, 222 m² de bureaux dans un immeuble ancien.

Gare du Nord

222 m² non-divisibles

1 800 000 €
8 109 €/m²


Immeuble, prestations et services

Espaces ouverts Cuisine Espace extérieur ERP/PMR Gardien Standing

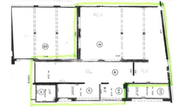
Au rez-de-chaussée, 222 m² de bureaux donnant sur une cour intérieure et répartis en espaces ouverts et bureaux cloisonnés. ERPable.

Surface entièrement décloisonnable. Nombreux puits de lumière. HSP : 3.94 m

Cuisine aménagée. Climatisation réversible.

Terrasse privative de 42m² aménageable (accord de la copropriété pour construire 42m² de surface de plancher).

Possibilité de louer des parkings en sous-sol dans la copropriété.

Etat des biens : Travaux de rénovation effectués en 2020.

Les biens s'inscrivent dans un immeuble ancien, principalement constitué d'un bâtiment sur rue et cour.

A destination mixte, exclusive de bureaux et résidentiel, l'immeuble est détenu en copropriété.

Ses façades pierres de taille sont en bon état de ravalement, ses parties communes de bon standing.

Ses prestations générales regroupent ascenseurs, interphone, digicode, gardien et accès sécurisés.

Tableau de surfaces

Niveau Type Surface Prix* Charges**
Rez de chaussée BUREAUX 222 m² NC NC

*Prix exprimé en €/m²
**Charges exprimées en € HT/m²/an

Conditions financières et juridiques

8 109 € / m²

Plus faible valeur du marché

3 901 € / m²

Plus forte valeur du marché

14 942 € / m²
  • Prix net vendeur

    1 800 000 €

  • Charges annuelles

    3 996 €

  • Impôt foncier

    12 €

  • Taxe sur les bureaux

    En cours de validation

  • Consommation énergétique

    En cours

  • Gaz à effet de serre

    En cours

  • Surfaces et affectations en cours de validation
  • Cession de l'actif libre de location ou d'occupation.
  • Vente de gré à gré.
  • Cession soumise aux droits d'enregistrement.
  • Le prix de vente s'exprime NET VENDEUR. L'assiette utilisée pour le calcul les droits de mutation n'inclut pas les honoraires hors TVA à la charge de l'acquéreur.

PARTAGER

Valérie AKNIN

Valérie AKNIN

Nous appeler
Selectionner cette offre Imprimer cette offre Partager cette offre par email
Réf. 5953

Les offres similaires