Transport en commun GARE DU NORD- GARE DE L EST

Des bureaux à vendre à PARIS 10 (75010), métro GARE DU NORD- GARE DE L EST, 264 m² de bureaux dans un immeuble récent classé ERP 2.

GARE DU NORD- GARE DE L EST

264 m² non-divisibles

3 250 000 €
12 311 €/m²


Immeuble, prestations et services

Climatisation Parking Chauffage collectif Espace extérieur ERP/PMR Gardien Standing

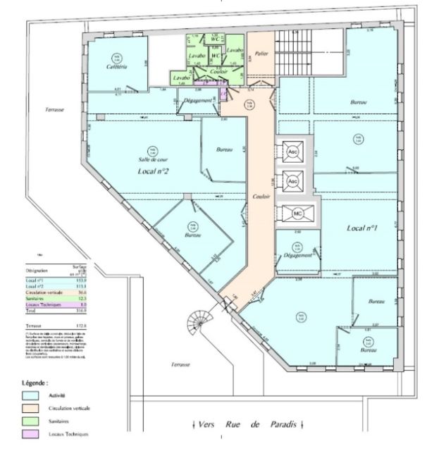
Au 6ème étage, 264 m² de bureaux très lumineux bénéficiant d'un cloisonnement de belle qualité.

Climatisation.

Câblage informatique.

Faux plafond.

Terrasse de 173 m² en jouissance privative.

50 m² env. de parties communes en jouissance exclusive.

Possibilité de 2 parkings en sous-sol.

Etat des biens : très bon état

Les biens s'inscrivent dans un immeuble récent classé ERP 1, construit dans les années 1975, principalement constitué d'un bâtiment sur rue et cour.

A destination de bureaux, ses façades modernes sont en bon état de ravalement.

Ses parties communes sont de bon standing.

Les prestations de chauffage (CPCU) et de climatisation sont produites par l'immeuble.

Les prestations générales regroupent hôtesse d'accueil, conciergerie, gardiennage, PC de sécurité, vidéo-surveillance, ascenseurs, monte-charges, interphone, digicode, gardien, accès sécurisés.

Tableau de surfaces

Niveau Type Surface Prix* Charges**
Etage BUREAUX 264 m² NC NC

*Prix exprimé en €/m²
**Charges exprimées en € HT/m²/an

Parking Nombre Prix /unité
Intérieur 2 30000 €

Conditions financières et juridiques

12 311 € / m²

Plus faible valeur du marché

3 901 € / m²

Plus forte valeur du marché

14 942 € / m²
  • Prix net vendeur

    3 250 000 €

  • Charges annuelles

    22 440 €

  • Impôt foncier

    En cours de validation

  • Taxe sur les bureaux

    23,32 €

  • Consommation énergétique

    En cours

  • Gaz à effet de serre

    En cours

  • Surfaces et affectations en cours de validation
  • Cession de l'actif libre de location ou d'occupation.
  • Vente de gré à gré.
  • Cession soumise aux droits d'enregistrement.
  • Le prix de vente s'exprime NET VENDEUR. L'assiette utilisée pour le calcul les droits de mutation (7,5% environ) n'inclut pas les honoraires hors TVA à la charge de l'acquéreur.

PARTAGER

Valérie AKNIN

Valérie AKNIN

Nous appeler
Selectionner cette offre Imprimer cette offre Partager cette offre par email
Réf. 5769

Les offres similaires