Transport en commun Rue du Bac

Des bureaux à vendre à PARIS 07 (75007), métro Rue du Bac, 1 159 m² de bureaux dans un immeuble restructuré.

Rue du Bac

1159 m² non-divisibles

Nous consulter
0 €/m²


Immeuble, prestations et services

Climatisation Espaces ouverts ERP/PMR Gardien Standing

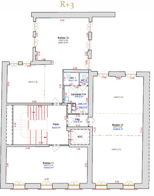
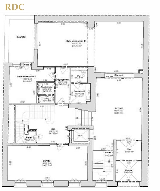
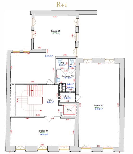
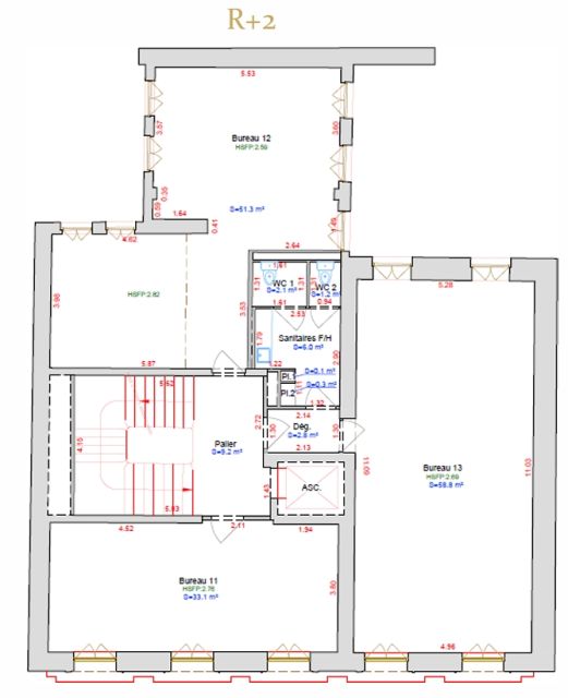
En R+4, 1 159 m² de bureaux répartis en plateaux lumineux et flexibles d’environ 170m² du RDC au R+3, disposant d’une hauteur libre de 2.70 m.

Aménagement mixte, espaces ouverts et bureaux de direction cloisonnés.

Dernier étage sous combles.

Flexibilité des aménagements. Beaux volumes, bureaux lumineux et fluides.

Faux plafonds rayonnants réversibles.

Chauffage par chaudière gaz àc ondensation et climatisation (échangeur Climespace en sous sol), avec diffusion en faux-plafond (rayonnants réversibles).

VMC double flux pour les bureaux ; CTA ; VMC simple flux pour sanitaires

Etat des biens : restructurés.

Les biens s'inscrivent dans un immeuble restructuré en 2016, principalement constitué d'un bâtiment sur rue et cour, sur la parcelle cadastrale AB12 d'une contenance de 272 m².

A destination exclusive de bureaux et résidentiel, l'immeuble est détenu en pleine propriété.

Ses façades modernes sont en bon état de ravalement, et ses parties communes de bon standing.

Ses prestations générales regroupent ascenseur et escalier accessible aux personnes à mobilité réduite, interphone, digicode, gardien et accès sécurisés.

Certificat NFHQE Bâtiments tertiaires, niveau excellent (restructuration 2016).

Les informations sur les risques auxquels ce bien est exposé sont disponibles sur le site Géorisques : www.georisques.gouv.fr.

Tableau de surfaces

Niveau Type Surface Prix* Charges**
Etage BUREAUX 177 m² NC NC
Etage BUREAUX 177 m² NC NC
Etage BUREAUX 178 m² NC NC
Etage BUREAUX 179 m² NC NC
Sous-sol BUREAUX 239 m² NC NC
Rez de chaussée BUREAUX 209 m² NC NC

*Prix exprimé en €/m²
**Charges exprimées en € HT/m²/an

Conditions financières et juridiques

0 € / m²

Plus faible valeur du marché

16 280 € / m²

Plus forte valeur du marché

29 412 € / m²
  • Prix net vendeur

    Nous consulter

  • Charges annuelles

    En cours de validation

  • Impôt foncier

    En cours de validation

  • Taxe sur les bureaux

    En cours de validation

  • Consommation énergétique

    En cours

  • Gaz à effet de serre

    En cours

  • Surfaces et affectations en cours de validation
  • Cession de l'actif libre de location ou d'occupation.
  • Vente de gré à gré.
  • Cession soumise aux droits d'enregistrement.
  • Le prix de vente s'exprime NET VENDEUR. L'assiette utilisée pour le calcul les droits de mutation n'inclut pas les honoraires hors TVA à la charge de l'acquéreur.

PARTAGER

Valérie AKNIN

Valérie AKNIN

Nous appeler
Selectionner cette offre Imprimer cette offre Partager cette offre par email
Réf. 6480