Transport en commun Rue du Bac

Des bureaux à vendre à PARIS 07 (75007), métro Rue du Bac, 859 m² de bureaux dans un immeuble haussmannien.

Rue du Bac

859 m² non-divisibles

15 000 000 €
17 463 €/m²


Immeuble, prestations et services

Espaces ouverts Parking Espace extérieur ERP/PMR Immeuble Haussmannien Gardien Standing

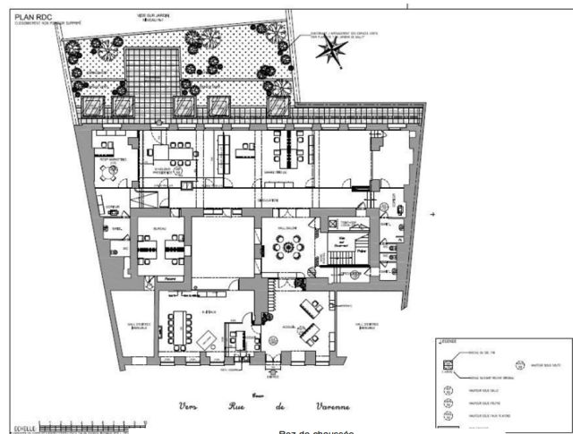
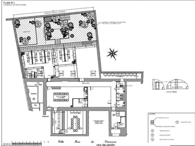
Au rez-de-chaussée et rez-de-jardin, 859 m² de bureaux répartis en espaces ouverts et cloisonnés.

Cloisonnement amovible double vitrage toute hauteur.

Parquet, plafond style industriel et faux-plafonds, doubles vitrages.

Câblage informatique.

Climatisation.

Accès indépendant.

Archives : 19 m²

Terrasse : 175 m²

Jardin privatif : 192 m²

Etat des biens : très bon état.

Les biens s'inscrivent dans un immeuble haussmannien, principalement constitué d'un bâtiment sur rue et cour.

A destination mixte, de bureaux et résidentiel, l'immeuble est détenu en copropriété.

Ses façades pierres de taille sont en bon état de ravalement, ses parties communes de bon standing.

Ses prestations générales regroupent ascenseurs, interphone, digicode, gardien et accès sécurisés.

Les informations sur les risques auxquels ce bien est exposé sont disponibles sur le site Géorisques : www.georisques.gouv.fr.

Tableau de surfaces

Niveau Type Surface Prix* Charges**
Rez de chaussée BUREAUX 433 m² NC NC
Rez de jardin BUREAUX 426 m² NC NC

*Prix exprimé en €/m²
**Charges exprimées en € HT/m²/an

Parking Nombre Prix /unité
Intérieur 15 0 €

Conditions financières et juridiques

17 463 € / m²

Plus faible valeur du marché

16 280 € / m²

Plus forte valeur du marché

29 412 € / m²
  • Prix net vendeur

    15 000 000 €

  • Charges annuelles

    67 002 €

  • Impôt foncier

    En cours de validation

  • Taxe sur les bureaux

    En cours de validation

  • Consommation énergétique

    En cours

  • Gaz à effet de serre

    En cours

  • Surfaces et affectations en cours de validation
  • Cession de l'actif libre de location ou d'occupation.
  • Vente de gré à gré.
  • Cession soumise aux droits d'enregistrement.
  • Le prix de vente s'exprime NET VENDEUR. L'assiette utilisée pour le calcul les droits de mutation n'inclut pas les honoraires hors TVA à la charge de l'acquéreur.

PARTAGER

Valérie AKNIN

Valérie AKNIN

Nous appeler
Selectionner cette offre Imprimer cette offre Partager cette offre par email
Réf. 6214