Des bureaux à vendre à PARIS 05 (75005), métro Censier Daubenton, 930 m² de bureaux dans un immeuble récent.

Censier Daubenton

930 m² non-divisibles

12 000 000 €
12 904 €/m²


Immeuble, prestations et services

Climatisation Espaces ouverts Espace extérieur ERP/PMR Gardien Standing

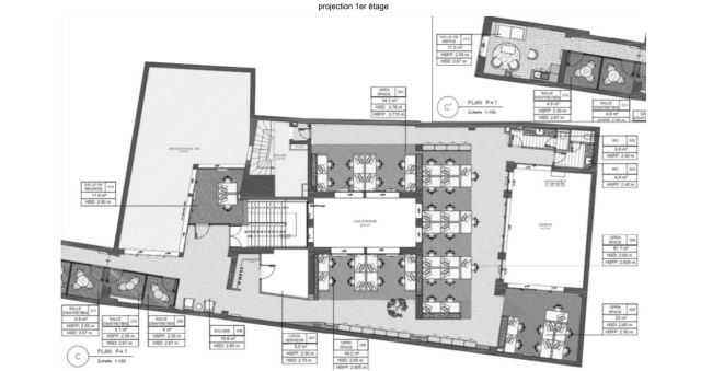
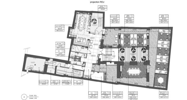
En R+1 et sous-sol, 930 m² de bureaux répartis en 1 accueil/espace attente, espaces ouverts/bureaux cloisonnés, salles de réunion et 1 kitchenette.

Belle hauteur sous plafond.

Câblage RJ45 catégorie 6, fibre optique.

Cour intérieure, terrasse.

Accès PMR, ERP : 5ème catégorie.

Moquette, faux-plafonds, doubles vitrages.

Câblage informatique .

Etat des biens : très bon état.

Les biens s'inscrivent dans un immeuble récent, principalement constitué d'un bâtiment sur rue et cour.

A destination exclusive de bureaux, l'immeuble est détenu en pleine propriété.

Ses façades modernes sont en bon état de ravalement, et ses parties communes de bon standing.

Ses prestations générales regroupent ascenseurs, interphone, digicode, gardien et accès sécurisés.

Les informations sur les risques auxquels ce bien est exposé sont disponibles sur le site Géorisques : www.georisques.gouv.fr.

Tableau de surfaces

Niveau Type Surface Prix* Charges**
Etage BUREAUX 310 m² NC NC
Sous-sol BUREAUX 310 m² NC NC
Rez de chaussée BUREAUX 310 m² NC NC

*Prix exprimé en €/m²
**Charges exprimées en € HT/m²/an

Conditions financières et juridiques

12 904 € / m²

Plus faible valeur du marché

10 613 € / m²

Plus forte valeur du marché

16 056 € / m²
  • Prix net vendeur

    12 000 000 €

  • Charges annuelles

    En cours de validation

  • Impôt foncier

    4,91 €

  • Taxe sur les bureaux

    20,79 €

  • Consommation énergétique

    En cours

  • Gaz à effet de serre

    En cours

  • Surfaces et affectations en cours de validation
  • Cession de l'actif libre de location ou d'occupation.
  • Vente de gré à gré.
  • Cession soumise aux droits d'enregistrement.
  • Le prix de vente s'exprime NET VENDEUR. L'assiette utilisée pour le calcul les droits de mutation n'inclut pas les honoraires hors TVA à la charge de l'acquéreur.

PARTAGER

Valérie AKNIN

Valérie AKNIN

Nous appeler
Selectionner cette offre Imprimer cette offre Partager cette offre par email
Réf. 6242