Transport en commun Censier Daubenton

Des bureaux à vendre à PARIS 05 (75005), métro Censier Daubenton, 1 225 m² de bureaux dans un immeuble récent.

Censier Daubenton

1225 m² non-divisibles

13 000 000 €
10 613 €/m²


Immeuble, prestations et services

ERP/PMR Gardien Standing

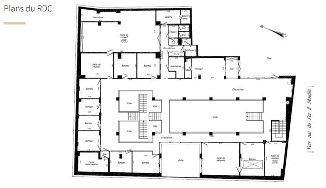
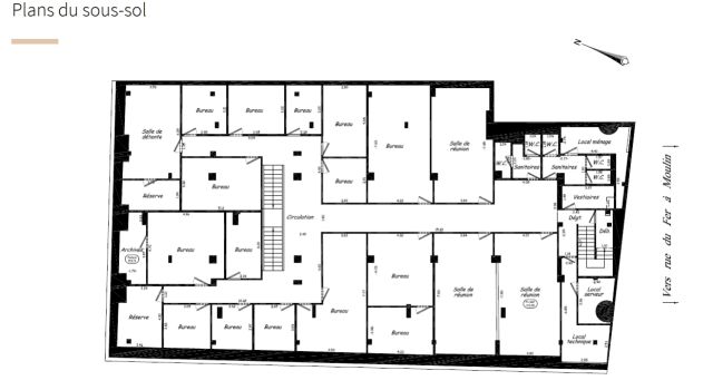
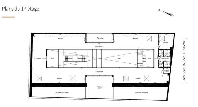
Au rez-de-chaussée, 1er étage et sous-sol, 1 225 m² de bureaux indépendants très atypiques et lumineux.

Verrière centrale.

Double accès.

2 espaces extérieurs privatifs.

Cour intérieure privative.

Parquet, doubles vitrages.

Câblage informatique.

Etat des biens : très bon état d'usage.

Les biens s'inscrivent dans un immeuble, principalement constitué d'un bâtiment sur rue et cour.

A destination exclusive de bureaux, l'immeuble est détenu en pleine propriété.

Ses façades modernes sont en bon état de ravalement, et ses parties communes de bon standing.

Ses prestations générales regroupent ascenseurs, interphone, digicode, gardien et accès sécurisés.

Les informations sur les risques auxquels ce bien est exposé sont disponibles sur le site Géorisques : www.georisques.gouv.fr.

Tableau de surfaces

Niveau Type Surface Prix* Charges**
Sous-sol BUREAUX 502 m² NC NC
Etage BUREAUX 231 m² NC NC
Rez de chaussée BUREAUX 492 m² NC NC

*Prix exprimé en €/m²
**Charges exprimées en € HT/m²/an

Conditions financières et juridiques

10 613 € / m²

Plus faible valeur du marché

10 613 € / m²

Plus forte valeur du marché

16 056 € / m²
  • Prix net vendeur

    13 000 000 €

  • Charges annuelles

    En cours de validation

  • Impôt foncier

    En cours de validation

  • Taxe sur les bureaux

    En cours de validation

  • Consommation énergétique

    En cours

  • Gaz à effet de serre

    En cours

  • Surfaces et affectations en cours de validation
  • Cession de l'actif libre de location ou d'occupation.
  • Vente de gré à gré.
  • Cession soumise aux droits d'enregistrement.
  • Le prix de vente s'exprime NET VENDEUR. L'assiette utilisée pour le calcul les droits de mutation n'inclut pas les honoraires hors TVA à la charge de l'acquéreur.

PARTAGER

Valérie AKNIN

Valérie AKNIN

Nous appeler
Selectionner cette offre Imprimer cette offre Partager cette offre par email
Réf. 6169