Transport en commun ST-PAUL-LE MARAIS

Des bureaux à vendre à PARIS 04 (75004), métro St Paul le Marais, 179,70 m² de bureaux d'exception, dans un immeuble ancien.

ST-PAUL-LE MARAIS

179 m² non-divisibles

3 400 000 €
18 995 €/m²


Immeuble, prestations et services

Espaces ouverts ERP/PMR Gardien Standing

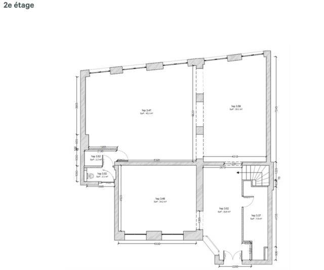
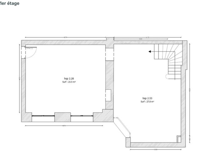
Aux 1er & 2ème étages,179,70 m² de bureaux répartis en espaces ouverts ou cloisonnés.

Beaux volumes.

Finitions haut de gamme.

Parquet, moulures, cheminées.

Câblage informatique.

Etat des biens : très bon état.

Les biens s'inscrivent dans un immeuble ancien, principalement constitué d'un bâtiment sur rue et cour.

A destination mixte, de bureaux et résidentiel, l'immeuble est détenu en copropriété.

Ses façades pierres de taille sont en bon état de ravalement, ses parties communes de bon standing.

Ses prestations générales regroupent ascenseurs, interphone, digicode, gardien et accès sécurisés.

Les informations sur les risques auxquels ce bien est exposé sont disponibles sur le site Géorisques : www.georisques.gouv.fr.

Tableau de surfaces

Niveau Type Surface Prix* Charges**
Etage BUREAUX 51 m² NC NC
Etage BUREAUX 128 m² NC NC

*Prix exprimé en €/m²
**Charges exprimées en € HT/m²/an

Conditions financières et juridiques

18 995 € / m²

Plus faible valeur du marché

11 037 € / m²

Plus forte valeur du marché

18 995 € / m²
  • Prix net vendeur

    3 400 000 €

  • Charges annuelles

    En cours de validation

  • Impôt foncier

    30,49 €

  • Taxe sur les bureaux

    En cours de validation

  • Consommation énergétique

    En cours

  • Gaz à effet de serre

    En cours

  • Surfaces et affectations en cours de validation
  • Cession de l'actif libre de location ou d'occupation.
  • Vente de gré à gré.
  • Cession soumise aux droits d'enregistrement.
  • Le prix de vente s'exprime NET VENDEUR. L'assiette utilisée pour le calcul les droits de mutation n'inclut pas les honoraires hors TVA à la charge de l'acquéreur.

PARTAGER

Valérie AKNIN

Valérie AKNIN

Nous appeler
Selectionner cette offre Imprimer cette offre Partager cette offre par email
Réf. 6331