Transport en commun Louvre Rivoli

Des bureaux à vendre à PARIS 01 (75001), métro , m² de bureaux divisibles à partir de m² dans un immeuble récent.

Louvre Rivoli

252 m² divisibles à partir de 106 m²

4 125 000 €
16 370 €/m²


Immeuble, prestations et services

Espaces ouverts Salle de réunion Cuisine ERP/PMR Immeuble Haussmannien Gardien Standing

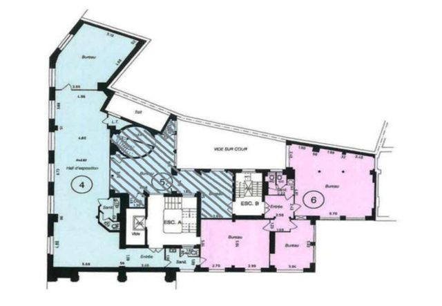
Au 1er étage, 2 lots de bureaux lumineux et Traversantd'une surface totale de 252 m² divisibles à partir de 106 m² répartis en un accueil, espaces ouverts/décloisonnés, salle de réunion et 1g rand bureau, cuisine, sanitaires.

Locaux flexibles et modulables.

Belle hauteur sous plafond.

Trois accès possibles.

Absence de contraintes porteuses.

Etat des biens : très bon état.

Les biens s'inscrivent dans un immeuble haussmannien, principalement constitué d'un bâtiment sur rue et cour.

A destination mixte, exclusive de bureaux et résidentiel, l'immeuble est détenu en copropriété.

Ses façades pierres de taille sont en bon état de ravalement, ses parties communes de bon standing.

Ses prestations générales regroupent ascenseurs, interphone, digicode, gardien et accès sécurisés.

Les informations sur les risques auxquels ce bien est exposé sont disponibles sur le site Géorisques : www.georisques.gouv.fr.

Tableau de surfaces

Niveau Type Surface Prix* Charges**
Etage BUREAUX 146 m² NC NC
Etage BUREAUX 106 m² NC NC

*Prix exprimé en €/m²
**Charges exprimées en € HT/m²/an

Conditions financières et juridiques

16 370 € / m²

Plus faible valeur du marché

11 778 € / m²

Plus forte valeur du marché

34 004 € / m²
  • Prix net vendeur

    4 125 000 €

  • Charges annuelles

    En cours de validation

  • Impôt foncier

    19,13 €

  • Taxe sur les bureaux

    25,31 €

  • Consommation énergétique

    En cours

  • Gaz à effet de serre

    En cours

  • Surfaces et affectations en cours de validation
  • Cession de l'actif libre de location ou d'occupation.
  • Vente de gré à gré.
  • Cession soumise aux droits d'enregistrement.
  • Le prix de vente s'exprime NET VENDEUR. L'assiette utilisée pour le calcul les droits de mutation n'inclut pas les honoraires hors TVA à la charge de l'acquéreur.

PARTAGER

Valérie AKNIN

Valérie AKNIN

Nous appeler
Selectionner cette offre Imprimer cette offre Partager cette offre par email
Réf. 6442