Transport en commun Tuileries

Des bureaux à vendre à PARIS 01 (75001), métro Tuileries, 647 m² de bureaux dans un immeuble restructuré à neuf.

Tuileries

647 m² non-divisibles

22 000 000 €
34 004 €/m²


Immeuble, prestations et services

Cuisine ERP/PMR Gardien Standing

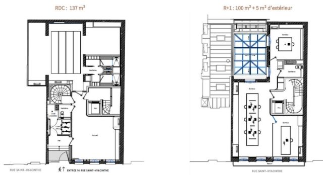
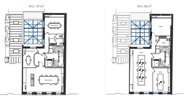
En R+5, 647 m² de bureaux répartis en plateaux modulables d'envion 100 m².

Des hauteurs sous plafond généreuses jusqu’à 4 mètres.

Verrière.

Des espaces collectifs hors du commun : espace sous verrière et espace de réception avec cuisine professionnelle.

Rooftop accessible.

Câblage informatique.

Etat des biens : restructurés.

Les biens s'inscrivent dans un immeuble restructuré, en R+5 sur sous-sol, principalement constitué d'un bâtiment sur rue et cour.

A destination exclusive de bureaux, l'immeuble est détenu en copropriété.

Ses façades pierres de taille sont en bon état de ravalement, ses parties communes de bon standing.

Ses prestations générales regroupent ascenseurs, interphone, digicode, gardien et accès sécurisés.

Les informations sur les risques auxquels ce bien est exposé sont disponibles sur le site Géorisques : www.georisques.gouv.fr.

Tableau de surfaces

Niveau Type Surface Prix* Charges**
Etage BUREAUX 137 m² NC NC
Etage BUREAUX 100 m² NC NC
Etage BUREAUX 97 m² NC NC
Etage BUREAUX 99 m² NC NC
Etage BUREAUX 96 m² NC NC
Etage BUREAUX 3 m² NC NC
Sous-sol BUREAUX 115 m² NC NC

*Prix exprimé en €/m²
**Charges exprimées en € HT/m²/an

Conditions financières et juridiques

34 004 € / m²

Plus faible valeur du marché

11 778 € / m²

Plus forte valeur du marché

34 004 € / m²
  • Prix net vendeur

    22 000 000 €

  • Charges annuelles

    En cours de validation

  • Impôt foncier

    En cours de validation

  • Taxe sur les bureaux

    25,31 €

  • Consommation énergétique

    En cours

  • Gaz à effet de serre

    En cours

  • Surfaces et affectations en cours de validation
  • Cession de l'actif libre de location ou d'occupation.
  • Vente de gré à gré.
  • Cession soumise aux droits d'enregistrement.
  • Le prix de vente s'exprime NET VENDEUR. L'assiette utilisée pour le calcul les droits de mutation n'inclut pas les honoraires hors TVA à la charge de l'acquéreur.

PARTAGER

Valérie AKNIN

Valérie AKNIN

Nous appeler
Selectionner cette offre Imprimer cette offre Partager cette offre par email
Réf. 6379