Transport en commun Pyramides

Des bureaux à vendre à PARIS 01 (75001), métro Pyramides, 935 m² de bureaux dans un immeuble ancien.

Pyramides

935 m² non-divisibles

20 000 000 €
21 391 €/m²


Immeuble, prestations et services

Espaces ouverts ERP/PMR Immeuble Haussmannien Gardien Standing

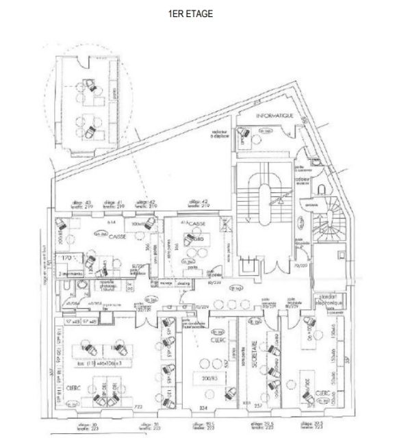
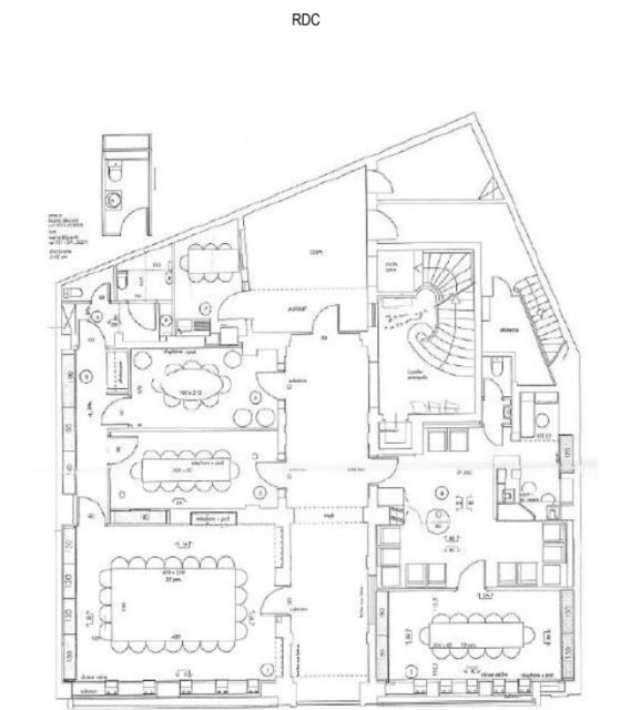
En R+4, 935 m² de bureaux répartis en espaces ouverts et cloisonnés, salles de réunions, tisanerie et accueil.

Moquette, faux-plafonds, doubles vitrages.

Câblage informatique.

Etat des biens : état d'usage.

Les biens s'inscrivent dans un immeuble haussmannien principalement constitué d'un bâtiment sur rue et cour.

A destination mixte, de bureaux et résidentiel, l'immeuble est détenu en copropriété.

Ses façades pierres de taille sont en bon état de ravalement, ses parties communes de très bon standing.

Ses prestations générales regroupent ascenseurs, interphone, digicode, gardien et accès sécurisés, cour extérieure commune accessible au RDC.

Les informations sur les risques auxquels ce bien est exposé sont disponibles sur le site Géorisques : www.georisques.gouv.fr.

Tableau de surfaces

Niveau Type Surface Prix* Charges**
Etage BUREAUX 168 m² NC NC
Etage BUREAUX 188 m² NC NC
Etage BUREAUX 193 m² NC NC
Etage BUREAUX 193 m² NC NC
Etage BUREAUX 193 m² NC NC
Sous-sol CAVES 135 m² NC NC

*Prix exprimé en €/m²
**Charges exprimées en € HT/m²/an

Conditions financières et juridiques

21 391 € / m²

Plus faible valeur du marché

11 778 € / m²

Plus forte valeur du marché

34 004 € / m²
  • Prix net vendeur

    20 000 000 €

  • Charges annuelles

    En cours de validation

  • Impôt foncier

    En cours de validation

  • Taxe sur les bureaux

    En cours de validation

  • Consommation énergétique

    En cours

  • Gaz à effet de serre

    En cours

  • Surfaces et affectations en cours de validation
  • Cession de l'actif libre de location ou d'occupation.
  • Vente de gré à gré.
  • Cession soumise aux droits d'enregistrement.
  • Le prix de vente s'exprime NET VENDEUR. L'assiette utilisée pour le calcul les droits de mutation n'inclut pas les honoraires hors TVA à la charge de l'acquéreur.

PARTAGER

Valérie AKNIN

Valérie AKNIN

Nous appeler
Selectionner cette offre Imprimer cette offre Partager cette offre par email
Réf. 6378