Transport en commun Les Halles

Des bureaux à vendre à PARIS 01 (75001), métro Les Halles, 146 m² de bureaux dans un immeuble ancien.

Les Halles

146 m² non-divisibles

2 300 000 €
15 754 €/m²


Immeuble, prestations et services

ERP/PMR Gardien Standing

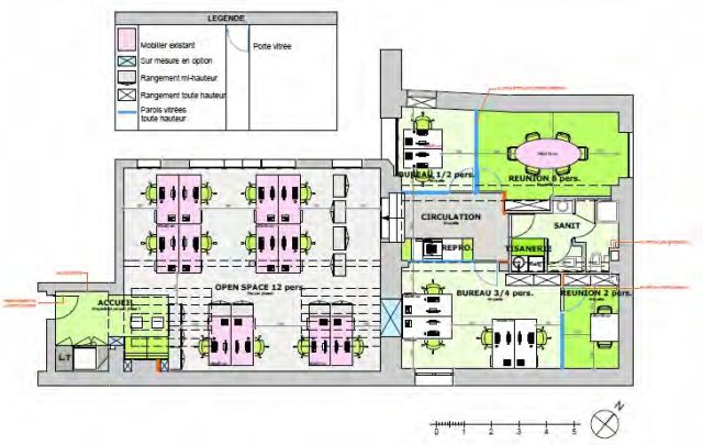
Au 1er étage, 146 m² de bureaux répartis en un accueil, un grand espace ouvert, 2 grands bureaux cloisonnés, 2 salles de réunion, kitchenette, sanitaires.

Parquet, poutres apparentes, verrière, doubles vitrages.

Câblage informatique.

Triple accès via le 9, rue des Déchargeurs, le 34, rue des Bourdonnais et le 17, rue des Halles.

Une cave d’environ 15 m² en sous-sol complète le bien.

Etat des biens : très bon état général.

Les biens s'inscrivent dans un hôtel particulier (Hôtel de Villeroy) inscrit aux Monuments Historiques, principalement constitué d'un bâtiment sur rue et cour, édifié sur sous-sol sur la parcelle cadastrale AO 120.

A destination mixte, de bureaux et résidentiel, l'immeuble est détenu en copropriété.

Ses façades pierres de taille sont en bon état de ravalement, ses parties communes de bon standing.

Ses prestations générales regroupent ascenseurs, interphone, digicode, gardien et accès sécurisés.

Tableau de surfaces

Niveau Type Surface Prix* Charges**
Etage BUREAUX 146 m² NC NC

*Prix exprimé en €/m²
**Charges exprimées en € HT/m²/an

Conditions financières et juridiques

15 754 € / m²

Plus faible valeur du marché

11 778 € / m²

Plus forte valeur du marché

34 004 € / m²
  • Prix net vendeur

    2 300 000 €

  • Charges annuelles

    4 927 €

  • Impôt foncier

    En cours de validation

  • Taxe sur les bureaux

    En cours de validation

  • Consommation énergétique

    En cours

  • Gaz à effet de serre

    En cours

  • Surfaces et affectations en cours de validation
  • Cession de l'actif libre de location ou d'occupation.
  • Vente de gré à gré.
  • Cession soumise aux droits d'enregistrement.
  • Le prix de vente s'exprime NET VENDEUR. L'assiette utilisée pour le calcul les droits de mutation n'inclut pas les honoraires hors TVA à la charge de l'acquéreur.

PARTAGER

Valérie AKNIN

Valérie AKNIN

Nous appeler
Selectionner cette offre Imprimer cette offre Partager cette offre par email
Réf. 5986