Des bureaux à vendre à NEUILLY SUR SEINE (75), métro Pont de Neuilly, un immeiuble de 1035 m².

Pont de Neuilly

1035 m² non-divisibles

Nous consulter
0 €/m²


Immeuble, prestations et services

Climatisation Parking Espace extérieur Standing

Des étages courants développant une surface d’environ 180 m² avec une hauteur sous plafond de :

• 2,71 m au RDC

• 2,58 m au R+1 au R+4

• 2,90 m au R+5

• 2,60 m au R+6

Des plateaux disposant de la climatisation réversible installée en faux plafond à l’exception du plateau du rezde-chaussée.

Les plateaux disposent chacun de deux balcons donnant sur la rue Beffroy.

Les étages du R+1 et R+2 sont en duplex grâce à un escalier intérieur reliant les deux plateaux.

Les étages du R+4 au R+6 forment un triplex grâce à un escalier intérieur reliant les plateaux.

Des plateaux rectangulaires efficaces sans contraintes porteuses offrant de grands espaces.

La possibilité pour le locataire d’aménager le plateau en open space ou bureaux cloisonnés.

Un escalier principal et un ascenseur desservent les paliers de chaque plateau du R-2 au R+5 tandis que le R+6 est seulement accessible par un escalier intérieur.

Des sanitaires sont situés à une extrémité du plateau.

Une terrasse de 75 m² est accessible au 6 ème étage.

Etat des biens : très bon état.

Les biens s'inscrivent dans un immeuble récent, édifié en 1988 en R+6 sur sous-sol, principalement constitué d'un bâtiment sur rue et cour, sur la parcelle cadastrale 000 F 37 d'une contenance de 416 m².

A destinationexclusive de bureaux, l'immeuble est détenu en copropriété.

Ses façades modernes sont en bon état de ravalement, et ses parties communes de bon standing.

L’immeuble bénéficie d’une cour d’entrée privative à l’avant de l’immeuble ainsi qu’un jardin et une terrasse privés en fond de parcelle.

La circulation verticale est assurée par un ascenseur ainsi qu’un escalier reliant le R-2 au R+5.

Une rampe d’accès au parking se situe à droite de l’immeuble.

Les informations sur les risques auxquels ce bien est exposé sont disponibles sur le site Géorisques : www.georisques.gouv.fr.

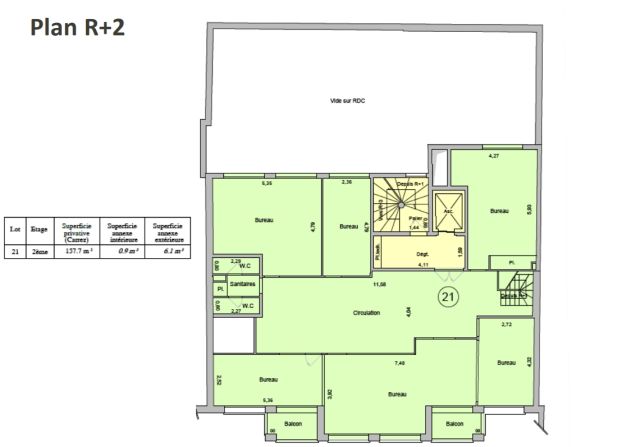
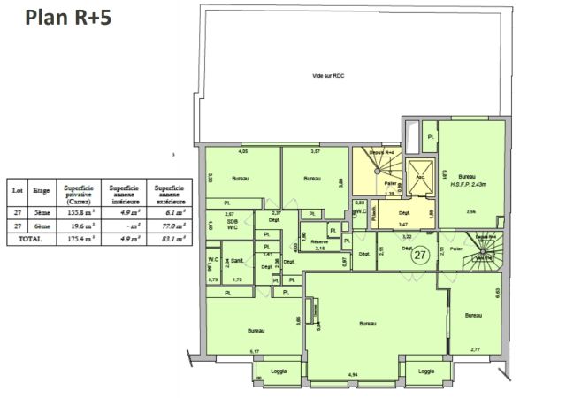
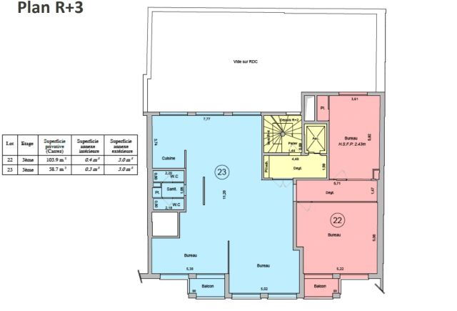
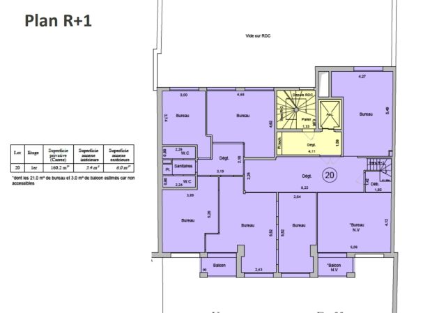
Tableau de surfaces

Niveau Type Surface Prix* Charges**
Etage BUREAUX 160 m² NC NC
Etage BUREAUX 158 m² NC NC
Etage BUREAUX 163 m² NC NC
Etage BUREAUX 162 m² NC NC
Etage BUREAUX 156 m² NC NC
Etage BUREAUX 20 m² NC NC
Rez de chauss BUREAUX 64 m² NC NC
Lot JARDIN PRIV. 107 m² NC NC
Lot DIVERS 45 m² NC NC

*Prix exprimé en €/m²
**Charges exprimées en € HT/m²/an

Parking Nombre Prix /unité
Intérieur 19 0 €

Conditions financières et juridiques

0 € / m²

Plus faible valeur du marché

7 734 € / m²

Plus forte valeur du marché

21 038 € / m²
  • Prix net vendeur

    Nous consulter

  • Charges annuelles

    En cours de validation

  • Impôt foncier

    En cours de validation

  • Taxe sur les bureaux

    En cours de validation

  • Consommation énergétique

    En cours

  • Gaz à effet de serre

    En cours

  • Surfaces et affectations en cours de validation
  • Cession de l'actif libre de location ou d'occupation.
  • Vente de gré à gré.
  • Cession soumise aux droits d'enregistrement.
  • Le prix de vente s'exprime NET VENDEUR. L'assiette utilisée pour le calcul les droits de mutation n'inclut pas les honoraires hors TVA à la charge de l'acquéreur.

PARTAGER

Valérie AKNIN

Valérie AKNIN

Nous appeler
Selectionner cette offre Imprimer cette offre Partager cette offre par email
Réf. 6431