Transport en commun Pont de Neuilly

Un immeuble indépendant de bureaux à vendre à NEUILLY SUR SEINE (92200), métro PONT DE NEUILLY M1, 746 m² de bureaux dans un immeuble récent.

Pont de Neuilly

746 m² non-divisibles

7 400 000 €
9 920 €/m²


Immeuble, prestations et services

Espaces ouverts Parking Immeuble indépendant Espace extérieur ERP/PMR Gardien Standing

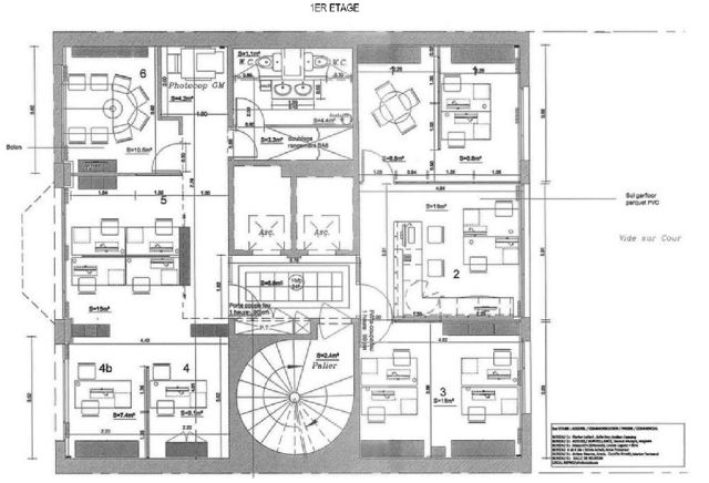
En R+6, 746 m² de bureaux répartis en espaces ouverts et cloisonnés.

Parquet, faux-plafonds, doubles vitrages.

Câblage informatique.

Climatisation double flux.

Etat des biens : état d'usage.

Les biens s'inscrivent dans un immeuble récent indépendant, principalement constitué d'un bâtiment sur rue et cour.

A destination exclusive de bureaux, l'immeuble est détenu en pleine propriété.

Ses façades modernes sont en bon état de ravalement, et ses parties communes de bon standing.

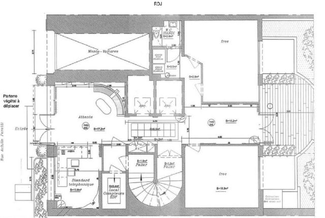
Ses prestations générales regroupent hall d'accueil, 2 ascenseurs, interphone, digicode, gardien, accès sécurisés, jardin privatif, terrasses.

Les informations sur les risques auxquels ce bien est exposé sont disponibles sur le site Géorisques : www.georisques.gouv.fr.

Tableau de surfaces

Niveau Type Surface Prix* Charges**
Etage BUREAUX 127 m² NC NC
Etage BUREAUX 131 m² NC NC
Etage BUREAUX 132 m² NC NC
Etage BUREAUX 110 m² NC NC
Etage BUREAUX 78 m² NC NC
Etage BUREAUX 64 m² NC NC
Rez de chaussée BUREAUX 104 m² NC NC

*Prix exprimé en €/m²
**Charges exprimées en € HT/m²/an

Parking Nombre Prix /unité
Intérieur 15 0 €

Conditions financières et juridiques

9 920 € / m²

Plus faible valeur du marché

7 734 € / m²

Plus forte valeur du marché

21 038 € / m²
  • Prix net vendeur

    7 400 000 €

  • Charges annuelles

    En cours de validation

  • Impôt foncier

    En cours de validation

  • Taxe sur les bureaux

    24,69 €

  • Consommation énergétique

    En cours

  • Gaz à effet de serre

    En cours

  • Surfaces et affectations en cours de validation
  • Cession de l'actif libre de location ou d'occupation.
  • Vente de gré à gré.
  • Cession soumise aux droits d'enregistrement.
  • Le prix de vente s'exprime NET VENDEUR. L'assiette utilisée pour le calcul les droits de mutation n'inclut pas les honoraires hors TVA à la charge de l'acquéreur.

PARTAGER

Valérie AKNIN

Valérie AKNIN

Nous appeler
Selectionner cette offre Imprimer cette offre Partager cette offre par email
Réf. 6143