Des bureaux à vendre à NEUILLY SUR SEINE (92), métro Les Sablons, 2 044 m² de bureaux dans un immeuble neuf.

Les Sablons

2044 m² non-divisibles

43 000 000 €
21 038 €/m²


Immeuble, prestations et services

Espaces ouverts Parking Chauffage collectif Espace extérieur ERP/PMR Gardien Standing

En R+9, 2 044 m² de bureaux répartis en espaces ouverts et cloisonnés.

Moquette, faux-plafonds, doubles vitrages.

Câblage informatique.

Vitrage toute hauteur.

Escalier Chambord en premier jour

Technique de grande qualité et efficacité.

Climatisation et chauffage par pompe à chaleur.

Espace exclusif au 9e étage avec 2 terrasses accessibles.

Un niveau de sous-sol au R-2 offrant 6 places de stationnement et un local vélo.

Un patio baigné de lumière naturelle.

Etat des biens : neufs.

Les biens s'inscrivent dans un immeuble neuf, bénéficiant d'une triple certification environnementale, HQE - Breeam - Wiredscore, sprincipalement constitué d'un bâtiment sur rue et cour.

A destination exclusive de bureaux, l'immeuble est détenu en pleine propriété.

Ses façades modernes sont en bon état de ravalement, et ses parties communes de bon standing.

Ses prestations générales regroupent ascenseurs, interphone, digicode, gardien et accès sécurisés, jardin et terrasses, accessible PMR, qualification ERP 5e catégorie.

Les informations sur les risques auxquels ce bien est exposé sont disponibles sur le site Géorisques : www.georisques.gouv.fr.

Tableau de surfaces

Niveau Type Surface Prix* Charges**
Etage BUREAUX 95 m² NC NC
Etage BUREAUX 150 m² NC NC
Etage BUREAUX 168 m² NC NC
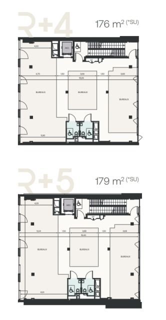
Etage BUREAUX 179 m² NC NC
Etage BUREAUX 176 m² NC NC
Etage BUREAUX 179 m² NC NC
Etage BUREAUX 176 m² NC NC
Etage BUREAUX 179 m² NC NC
Etage BUREAUX 177 m² NC NC
Rez de chauss BUREAUX 150 m² NC NC
Sous-sol BUREAUX 286 m² NC NC
Sous-sol BUREAUX 129 m² NC NC

*Prix exprimé en €/m²
**Charges exprimées en € HT/m²/an

Parking Nombre Prix /unité
Intérieur 6 0 €

Conditions financières et juridiques

21 038 € / m²

Plus faible valeur du marché

7 734 € / m²

Plus forte valeur du marché

21 038 € / m²
  • Prix net vendeur

    43 000 000 €

  • Charges annuelles

    En cours de validation

  • Impôt foncier

    En cours de validation

  • Taxe sur les bureaux

    23,3 €

  • Consommation énergétique

    En cours

  • Gaz à effet de serre

    En cours

  • Surfaces et affectations en cours de validation
  • Cession de l'actif libre de location ou d'occupation.
  • Vente de gré à gré.
  • Cession soumise aux droits d'enregistrement.
  • Le prix de vente s'exprime NET VENDEUR. L'assiette utilisée pour le calcul les droits de mutation n'inclut pas les honoraires hors TVA à la charge de l'acquéreur.

PARTAGER

Valérie AKNIN

Valérie AKNIN

Nous appeler
Selectionner cette offre Imprimer cette offre Partager cette offre par email
Réf. 6051