Transport en commun Robespierre

Des bureaux à vendre à MONTREUIL (93100), métro Robespierre, 975 m² de bureaux dans un immeuble indépendant récent.

Robespierre

975 m² non-divisibles

5 900 000 €
6 052 €/m²


Immeuble, prestations et services

Climatisation Parking Immeuble indépendant ERP/PMR Gardien Standing

En R+2 avec mezzanine et sous-sol, 975 m² de bureaux atypiques lumineux répartis en espace ouvert et sous sol aménagé.

Moquette, faux-plafonds, doubles vitrages.

Câblage : fibre optique.

Etat des biens : très bon état.

Les biens s'inscrivent dans un immeuble indépendant récent, en R+2 avec mezzanine sur sous-sol, principalement constitué d'un bâtiment sur rue et cour.

A destination exclusive de bureaux, l'immeuble est détenu en copropriété.

Ses façades modernes sont en bon état de ravalement, et ses parties communes de bon standing.

Ses prestations générales regroupent accès livraison, ascenseurs, interphone, digicode, gardien et accès sécurisés.

Les informations sur les risques auxquels ce bien est exposé sont disponibles sur le site Géorisques : www.georisques.gouv.fr.

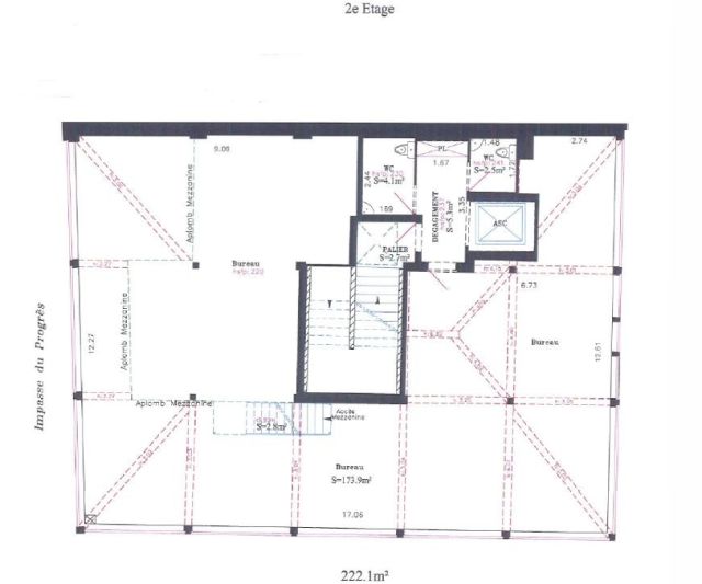
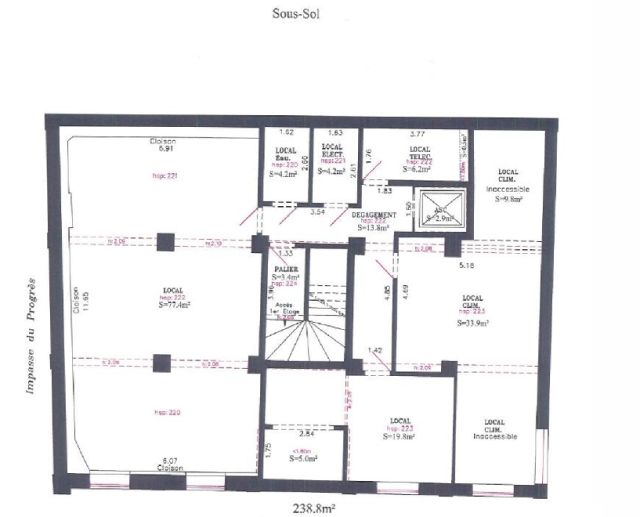
Tableau de surfaces

Niveau Type Surface Prix* Charges**
Etage BUREAUX 225 m² NC NC
Etage BUREAUX 222 m² NC NC
Mezzanine BUREAUX 62 m² NC NC
Rez de chaussée BUREAUX 227 m² NC NC
Sous-sol BUREAUX 239 m² NC NC

*Prix exprimé en €/m²
**Charges exprimées en € HT/m²/an

Parking Nombre Prix /unité
Intérieur 10 0 €

Conditions financières et juridiques

6 052 € / m²

Plus faible valeur du marché

2 066 € / m²

Plus forte valeur du marché

6 052 € / m²
  • Prix net vendeur

    5 900 000 €

  • Charges annuelles

    En cours de validation

  • Impôt foncier

    En cours de validation

  • Taxe sur les bureaux

    En cours de validation

  • Consommation énergétique

    En cours

  • Gaz à effet de serre

    En cours

  • Surfaces et affectations en cours de validation
  • Cession de l'actif libre de location ou d'occupation.
  • Vente de gré à gré.
  • Cession soumise aux droits d'enregistrement.
  • Le prix de vente s'exprime NET VENDEUR. L'assiette utilisée pour le calcul les droits de mutation n'inclut pas les honoraires hors TVA à la charge de l'acquéreur.

PARTAGER

Valérie AKNIN

Valérie AKNIN

Nous appeler
Selectionner cette offre Imprimer cette offre Partager cette offre par email
Réf. 6148

Les offres similaires