Transport en commun Robespierre

Des bureaux à vendre à MONTREUIL (93100), métro Robespierre, 577 m² de bureaux dans un immeuble récent.

Robespierre

623 m² non-divisibles

3 750 000 €
6 020 €/m²


Immeuble, prestations et services

Espaces ouverts Espace extérieur ERP/PMR Gardien Standing

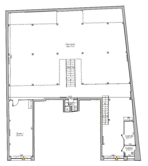
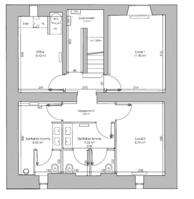
Immeuble indépendant de 623 m² de bureaux répartis en espaces ouverts et cloisonnés.

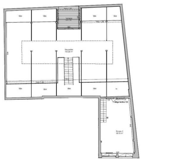
Terrasse de 12 m² au R+1.

Bureaux atypiques / industriels.

Verrière neuve – lumière zénithale en partie.

Locaux ERP(ables) de catégorie 5.

Terrasse accessible d’environ 10 m² en mezzanine.

Double Accès indépendant ( accès livraison ).

Bureaux en copropriété dans un ensemble immobilier mixte ( résidentiel / bureaux ) : possibilité de vente en bloc de l’intégralité de l’actif possible.

Etat des biens : neuf.

Les biens s'inscrivent dans un immeuble neuf, principalement constitué d'un bâtiment sur rue et cour.

A destination exclusive de bureaux, l'immeuble est détenu en copropriété.

Ses façades modernes sont en bon état de ravalement, et ses parties communes de bon standing.

Ses prestations générales regroupent, interphone, digicode, gardien et accès sécurisés.

Les informations sur les risques auxquels ce bien est exposé sont disponibles sur le site Géorisques : www.georisques.gouv.fr.

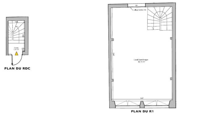
Tableau de surfaces

Niveau Type Surface Prix* Charges**
Immeuble BUREAUX 327 m² NC NC
Mezzanine BUREAUX 197 m² NC NC
Etage BUREAUX 43 m² NC NC
Sous-sol BUREAUX 56 m² NC NC

*Prix exprimé en €/m²
**Charges exprimées en € HT/m²/an

Conditions financières et juridiques

6 020 € / m²

Plus faible valeur du marché

2 066 € / m²

Plus forte valeur du marché

6 052 € / m²
  • Prix net vendeur

    3 750 000 €

  • Charges annuelles

    En cours de validation

  • Impôt foncier

    En cours de validation

  • Taxe sur les bureaux

    23,32 €

  • Consommation énergétique

    En cours

  • Gaz à effet de serre

    En cours

  • Surfaces et affectations en cours de validation
  • Cession de l'actif libre de location ou d'occupation.
  • Vente de gré à gré.
  • Cession soumise aux droits d'enregistrement.
  • Le prix de vente s'exprime NET VENDEUR. L'assiette utilisée pour le calcul les droits de mutation n'inclut pas les honoraires hors TVA à la charge de l'acquéreur.

PARTAGER

Valérie AKNIN

Valérie AKNIN

Nous appeler
Selectionner cette offre Imprimer cette offre Partager cette offre par email
Réf. 6022

Les offres similaires