Transport en commun Robespierre

Des bureaux à louer ou à vendre à MONTREUIL, (93100), métro Porte de Montreuil, 1.736 m² de bureaux dans un immeuble neuf éligible à un classement ERP de categorie 5. Accès direct sur le boulevard périphérique "Porte de Montreuil" ou "Porte de Vincennes".

Robespierre

1736 m² non-divisibles

Nous consulter
0 €/m²


Immeuble, prestations et services

Parking Espace extérieur ERP/PMR Standing

. Accès Personnes Mobilités Réduites

. Terrasses au 6ème. Toiture végétalisée accessible ROOFTOP

. Espaces végétalisés et paysagers. Réutilisation des eaux de pluie

. Luminosité naturelle à tous les niveaux

. Faux plancher technique

. Faux plafond rayonnant

. Climatisation réversible double flux

. Luminaires LED

. 6 parkings voitures. 6 parkings 2 roues

. Locaux vélos et archives. Douche

. Etat des locaux : neuf

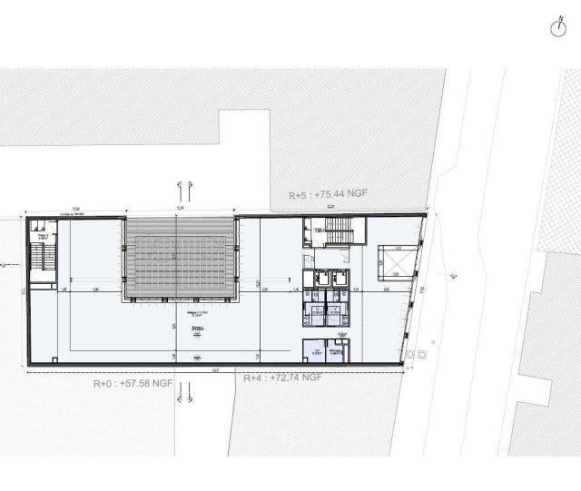
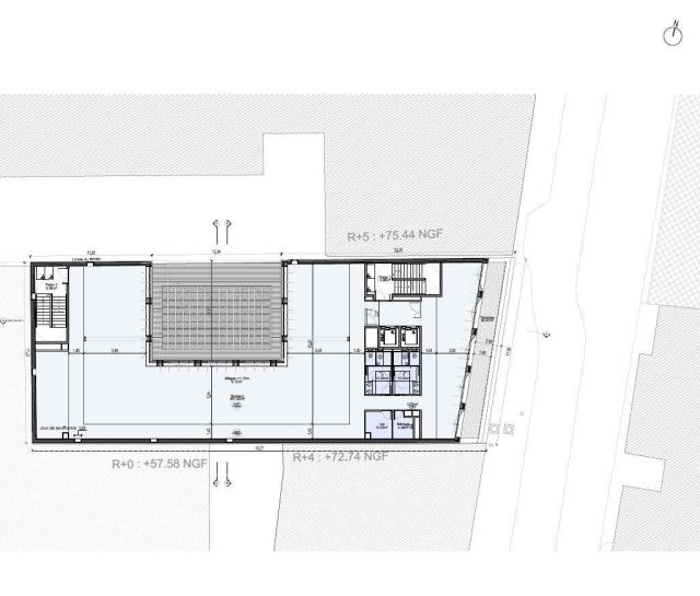
Les biens s'inscrivent dans un immeuble neuf en R+5, principalement constitué d'un bâtiment sur rue et cour intérieure.

L'immeuble offre un capacitaire de 285 personnes et sera labellisé BREEAM Excellent s’inscrivant ainsi dans une démarche environnementale et RSE exemplaire.

A destination exclusive de bureaux, ses façades modernes sont en bon état de ravalement.

Ses parties communes sont de bon standing. Toiture végétalisée accessible ROOFTOP

Ses prestations générales regroupent ascenseurs, interphone, digicode, accès sécurisés.

Tableau de surfaces

Niveau Type Surface Prix* Charges**
Rez de chaussée BUREAUX 470 m² NC 29 €
Rez de chaussée BUREAUX 539 m² NC 29 €
Rez de chaussée BUREAUX 554 m² NC 29 €
Sous-sol LOC. POLYVALENTS 173 m² NC 29 €

*Prix exprimé en €/m²
**Charges exprimées en € HT/m²/an

Parking Nombre Prix /unité
Intérieur 6 0 €

Conditions financières et juridiques

0 € / m²

Plus faible valeur du marché

2 066 € / m²

Plus forte valeur du marché

6 052 € / m²
  • Prix net vendeur

    Nous consulter

  • Charges annuelles

    50 344 €

  • Impôt foncier

    En cours de validation

  • Taxe sur les bureaux

    6,45 €

  • Consommation énergétique

    En cours

  • Gaz à effet de serre

    En cours

  • Surfaces et affectations en cours de validation
  • Cession de l'actif libre de location ou d'occupation.
  • Vente de gré à gré.
  • Cession soumise aux droits d'enregistrement.
  • Le prix de vente s'exprime NET VENDEUR. L'assiette utilisée pour le calcul les droits de mutation n'inclut pas les honoraires hors TVA à la charge de l'acquéreur.

PARTAGER

Valérie AKNIN

Valérie AKNIN

Nous appeler
Selectionner cette offre Imprimer cette offre Partager cette offre par email
Réf. 5803

Les offres similaires