Transport en commun Malakoff - Rue Etienne Dolet

Des bureaux à vendre à MALAKOFF (92240), métro Malakoff - Rue Etienne Dolet, 245 m² de bureaux dans un immeuble récent.

Malakoff - Rue Etienne Dolet

245 m² non-divisibles

1 600 000 €
6 531 €/m²


Immeuble, prestations et services

Espaces ouverts Cuisine ERP/PMR Gardien Standing

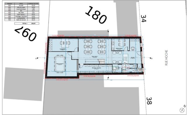
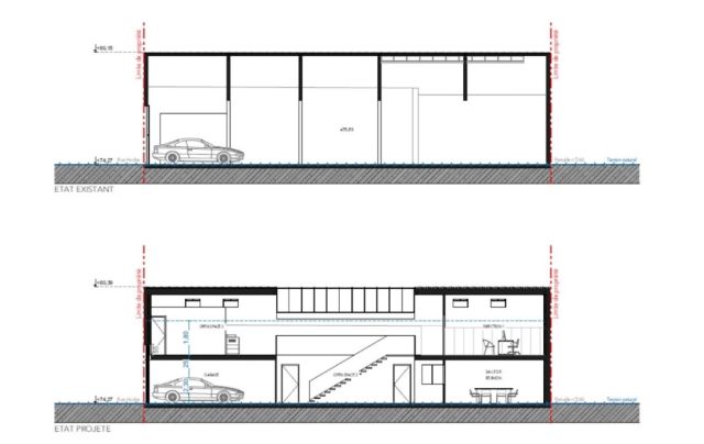
Au rez-de-chaussée et mezzanine, 245 m² de bureaux atypiques et limineux, répartis en espaces ouverts et bureaux cloisonnés aux rez-de chaussée et mezzanine.

RDC : accueil, open space, 2 bureaux, cuisine, archives, sanitaires, local technique.

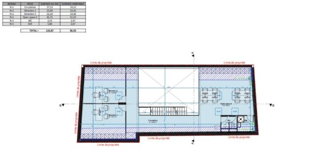
Mezzanine : open space, 2 bureaux, sanitaires, douche.

Parquet, faux-plafonds, doubles vitrages.

Câblage informatique.

Climatisation réversible double flux.

Etat des biens : restructurés.

Les biens s'inscrivent dans un immeuble récent, principalement constitué d'un bâtiment sur rue et cour.

A destination exclusive de bureaux, l'immeuble est détenu en pleine propriété.

Ses façades modernes sont en bon état de ravalement, et ses parties communes de bon standing.

Ses prestations générales regroupent ascenseurs, interphone, digicode, gardien et accès sécurisés.

Les informations sur les risques auxquels ce bien est exposé sont disponibles sur le site Géorisques : www.georisques.gouv.fr.

Tableau de surfaces

Niveau Type Surface Prix* Charges**
Rez de chaussée BUREAUX 159 m² NC NC
Mezzanine BUREAUX 86 m² NC NC

*Prix exprimé en €/m²
**Charges exprimées en € HT/m²/an

Conditions financières et juridiques

6 531 € / m²

Plus faible valeur du marché

4 753 € / m²

Plus forte valeur du marché

6 531 € / m²
  • Prix net vendeur

    1 600 000 €

  • Charges annuelles

    En cours de validation

  • Impôt foncier

    En cours de validation

  • Taxe sur les bureaux

    En cours de validation

  • Consommation énergétique

    En cours

  • Gaz à effet de serre

    En cours

  • Surfaces et affectations en cours de validation
  • Cession de l'actif libre de location ou d'occupation.
  • Vente de gré à gré.
  • Cession soumise aux droits d'enregistrement.
  • Le prix de vente s'exprime NET VENDEUR. L'assiette utilisée pour le calcul les droits de mutation n'inclut pas les honoraires hors TVA à la charge de l'acquéreur.

PARTAGER

Valérie AKNIN

Valérie AKNIN

Nous appeler
Selectionner cette offre Imprimer cette offre Partager cette offre par email
Réf. 6075