Transport en commun Billancourt à 600 m

Des bureaux à vendre à Boulogne-Billancourt (92100), métro Billancourt, 1125,40 m² de bureaux dans un immeuble récent.

Billancourt à 600 m

1125 m² divisibles à partir de 0 m²

Nous consulter
0 €/m²


Immeuble, prestations et services

Espaces ouverts Parking ERP/PMR Gardien Standing

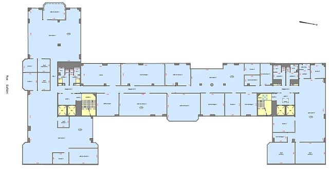
Au 45ème étage, 1 125 m² de bureaux lumineux répartis en espaces ouverts, salles de réunion.

2 «pôles» ascenseurs, escaliers et sanitaires de part et d’autre du plateau.

Flexibilité d’aménagement.

Accessibilité PMR.

Moquette, faux-plafonds, doubles vitrages.

Câblage en plinthes périphériques.

Climatisation réversible.

Etat des biens : très bon état.

Les biens s'inscrivent dans un immeuble récent, principalement constitué d'un bâtiment sur rue et cour.

A destination de bureaux, ses façades modernes sont en bon état de ravalement.

Ses parties communes sont de bon standing.

Ses prestations générales regroupent ascenseurs, interphone, digicode, gardien, PC sécurité, accès sécurisés, RIE.

Tableau de surfaces

Niveau Type Surface Prix* Charges**
Etage BUREAUX 1125 m² NC NC

*Prix exprimé en €/m²
**Charges exprimées en € HT/m²/an

Parking Nombre Prix /unité
Intérieur 27 0 €

Conditions financières et juridiques

0 € / m²

Plus faible valeur du marché

7 360 € / m²

Plus forte valeur du marché

14 895 € / m²
  • Prix net vendeur

    Nous consulter

  • Charges annuelles

    39 814 €

  • Impôt foncier

    27,05 €

  • Taxe sur les bureaux

    24,34 €

  • Consommation énergétique

    En cours

  • Gaz à effet de serre

    En cours

  • Surfaces et affectations en cours de validation
  • Cession de l'actif libre de location ou d'occupation.
  • Vente de gré à gré.
  • Cession soumise aux droits d'enregistrement.
  • Le prix de vente s'exprime NET VENDEUR. L'assiette utilisée pour le calcul les droits de mutation n'inclut pas les honoraires hors TVA à la charge de l'acquéreur.

PARTAGER

Valérie AKNIN

Valérie AKNIN

Nous appeler
Selectionner cette offre Imprimer cette offre Partager cette offre par email
Réf. 5983

Les offres similaires